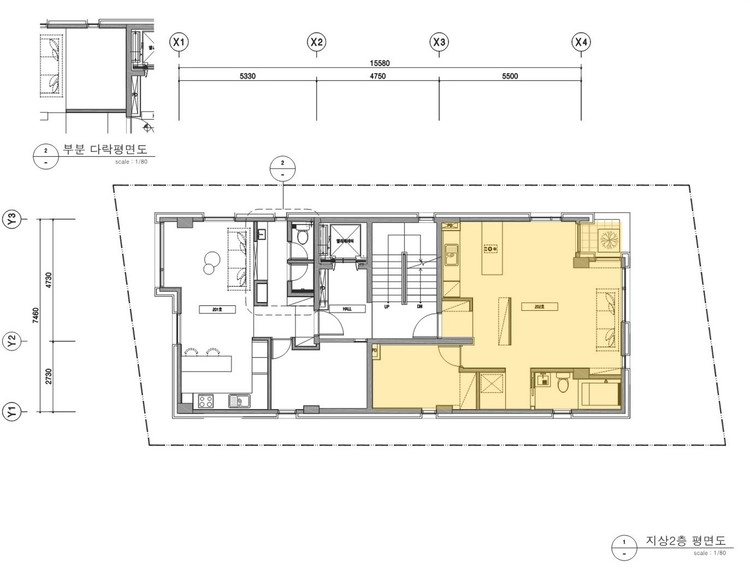
강남구 청담동 '인유어즈 청담' 202호 서울시┃강남구┃청담동 전세 7억2,000만원┃관리비 25만원 월세 6억5,000/50만원┃관리비 25만원 전용면적 46.43㎡┃실사용면적 60.93㎡(서비스 및 테라스 면적 포함) 구조 1LDK/단층┃방수 1개/분리형┃욕실수 1개 해당층 2F┃총층 B1~5F┃입주 협의┃융자 있음 교통 청담역 (7호선) 도보 9분 | ||
일상이 예술로 변하는 순간 다양한 타입의 주거 스튜디오로 구성된 공동체주택 <인유어즈 청담>을 소개합니다. 구조는 다르지만 모든 스튜디오가 3.9m에 달하는 높은 층고를 갖추고 있습니다. 202호는 아일랜드 조리대를 두고도 여유가 느껴지는 넓은 주방과 거실이 매력적인 집입니다. 거실과 주방에 다섯 개의 크고 작은 창이 나있어 전반적으로 분위기가 화사해요. 벽과 바닥은 순백의 도화지 같고요. 거실에 있으면 뭔가 나른한 일요일 오후처럼 마음이 느긋해집니다. 만약 거실에 작업 공간을 만들 계획이라면, 창가쪽으로 식탁이나 작업 테이블을 배치하면 좋을 것 같습니다. 욕조가 있는 집을 찾는 일이 점점 어려워지고 있는데, 이곳 욕실에 2인도 거뜬히 들어갈 수 있는 욕조를 장착했습니다. 누구에게도 방해받지 않는 나만을 위한 공간에서 몸과 마음의 피로를 푸는 온전한 시간을 가져 보세요. 현관문 옆에는 '나의 집'를 표현할 수 있는 작은 알코브가 마련되어 있어요. 좋아하는 그림과 사진 또는 향초로 나만의 표식을 한다면, 현관문 앞에 도착하는 순간 미소가 절로 지어질 것 같습니다. 차분한 분위기의 주택가에 들어선 <인유어즈 청담>은 청담근린공원과도 아주 가까운 거리에 위치해 있습니다. 청담근린공원은 숲이 제법 울창하고 경사가 가파르지 않아 산책하기에 참 좋은 곳이에요. 실개천 흐르는 소리와 산새 소리를 들으며 쉬엄쉬엄 거닐어보세요. 배드민턴장·골프연습장·정자·약수터 등 다양한 시설과 공간으로 이루어진 도심 속의 작은 쉼터입니다. ☆ 본 건물 5층에는 공용 옥상정원이, 1층에는 공유키친이, 지층에는 하우스콘서트장이 있습니다. 입주자의 경우 공유키친과 하우스콘서트장을 단독으로 월 2회 무료로 사용할 수 있습니다. ☆ 신축 당시 촬영한 사진으로, 현재는 임차인이 거주하고 있습니다. |
| 위치 | 서울시 강남구 청담동 59-20 | 업데이트 | 2026.04.09 | ||
| 주구조 | 철근콘크리트조 | 주용도 | 다세대주택 | 사용승인일 | 2021.04.22 |
| 방 수 | 1개(분리형) | 욕실 수 | 1개 | 서비스공간 | 테라스 |
| 방향/기준 | 남서향/거실 | 난방종류 | 도시가스(개별) | 엘리베이터 | O |
| 주차/주차비 | 1대/월15만원 (총주차대수 4대) | 반려동물 | X | ||
| 등록임대주택 | 등록 | 보증금대출 | 개별 확인 | 보증보험 | O |
| 옵션 | 신발장, 붙박이장, 천장형에어컨 2대, 싱크대, 빌트인냉장고, 전기쿡탑, 세탁기, 건조기, 블라인드, 비디오폰, 전자도어락 | ||||
| 기타시설 | 보안출입문, 공용부 CCTV, 화재경보기, 우편함 | 계약단위 | 최소 2년 | ||
| 관리비 | 일반관리비 25만원 (정액/중개의뢰인의 관리비 세부내역 미제시로 비목별 금액 미표시)
사용료 (실비)
| ||||
| 비고 | 공유주방(1F)/하우스콘서트장(B1), 공용옥상정원(5F) 있음, 건물 내 흡연 불가 | ||||
| 최대 중개보수 | 중개보수 = 거래금액 x 상한요율 (VAT 별도) >> 중개보수 계산기
| ||||
| 설계 | 시공 | 아키노바 | 매물 담당 | 전명희 | |
| 글 | 전명희 | 사진 | 전명희 | 도면 | 소유자 |
강남구 청담동 '인유어즈 청담' 202호 서울시┃강남구┃청담동 전세 7억2,000만원┃관리비 25만원 월세 6억5,000/50만원┃관리비 25만원 전용면적 46.43㎡┃실사용면적 60.93㎡(서비스 및 테라스 면적 포함) 구조 1LDK/단층┃방수 1개/분리형┃욕실수 1개 해당층 2F┃총층 B1~5F┃입주 협의┃융자 있음 교통 청담역 (7호선) 도보 9분 | ||
일상이 예술로 변하는 순간 다양한 타입의 주거 스튜디오로 구성된 공동체주택 <인유어즈 청담>을 소개합니다. 구조는 다르지만 모든 스튜디오가 3.9m에 달하는 높은 층고를 갖추고 있습니다. 202호는 아일랜드 조리대를 두고도 여유가 느껴지는 넓은 주방과 거실이 매력적인 집입니다. 거실과 주방에 다섯 개의 크고 작은 창이 나있어 전반적으로 분위기가 화사해요. 벽과 바닥은 순백의 도화지 같고요. 거실에 있으면 뭔가 나른한 일요일 오후처럼 마음이 느긋해집니다. 만약 거실에 작업 공간을 만들 계획이라면, 창가쪽으로 식탁이나 작업 테이블을 배치하면 좋을 것 같습니다. 욕조가 있는 집을 찾는 일이 점점 어려워지고 있는데, 이곳 욕실에 2인도 거뜬히 들어갈 수 있는 욕조를 장착했습니다. 누구에게도 방해받지 않는 나만을 위한 공간에서 몸과 마음의 피로를 푸는 온전한 시간을 가져 보세요. 현관문 옆에는 '나의 집'를 표현할 수 있는 작은 알코브가 마련되어 있어요. 좋아하는 그림과 사진 또는 향초로 나만의 표식을 한다면, 현관문 앞에 도착하는 순간 미소가 절로 지어질 것 같습니다. 차분한 분위기의 주택가에 들어선 <인유어즈 청담>은 청담근린공원과도 아주 가까운 거리에 위치해 있습니다. 청담근린공원은 숲이 제법 울창하고 경사가 가파르지 않아 산책하기에 참 좋은 곳이에요. 실개천 흐르는 소리와 산새 소리를 들으며 쉬엄쉬엄 거닐어보세요. 배드민턴장·골프연습장·정자·약수터 등 다양한 시설과 공간으로 이루어진 도심 속의 작은 쉼터입니다. ☆ 본 건물 5층에는 공용 옥상정원이, 1층에는 공유키친이, 지층에는 하우스콘서트장이 있습니다. 입주자의 경우 공유키친과 하우스콘서트장을 단독으로 월 2회 무료로 사용할 수 있습니다. ☆ 신축 당시 촬영한 사진으로, 현재는 임차인이 거주하고 있습니다. |
| 위치 | 서울시 강남구 청담동 59-20 | 업데이트 | 2026.04.09 | ||
| 주구조 | 철근콘크리트조 | 주용도 | 다세대주택 | 사용승인일 | 2021.04.22 |
| 방 수 | 1개(분리형) | 욕실 수 | 1개 | 서비스공간 | 테라스 |
| 방향/기준 | 남서향/거실 | 난방종류 | 도시가스(개별) | 엘리베이터 | O |
| 주차/주차비 | 1대/월15만원 (총주차대수 4대) | 반려동물 | X | ||
| 등록임대주택 | 등록 | 보증금대출 | 개별 확인 | 보증보험 | O |
| 옵션 | 신발장, 붙박이장, 천장형에어컨 2대, 싱크대, 빌트인냉장고, 전기쿡탑, 세탁기, 건조기, 블라인드, 비디오폰, 전자도어락 | ||||
| 기타시설 | 보안출입문, 공용부 CCTV, 화재경보기, 우편함 | 계약단위 | 최소 2년 | ||
| 관리비 | 일반관리비 25만원 (정액/중개의뢰인의 관리비 세부내역 미제시로 비목별 금액 미표시)
사용료 (실비)
| ||||
| 비고 | 공유주방(1F)/하우스콘서트장(B1), 공용옥상정원(5F) 있음, 건물 내 흡연 불가 | ||||
| 최대 중개보수 | 중개보수 = 거래금액 x 상한요율 (VAT 별도) >> 중개보수 계산기
| ||||
| 설계 | 시공 | 아키노바 | 매물 담당 | 전명희 | |
| 글 | 전명희 | 사진 | 전명희 | 도면 | 소유자 |

