마포구 상수동 '함께주택' 근생 102호 서울시┃마포구┃상수동 월세 1,100/95만원┃관리비 3만원 (VAT 별도) 계약면적 16.79㎡┃전용면적 16.79㎡ 화장실 1개/옥외/남녀공용┃주차 1대/옥외┃엘리베이터 있음 해당층 1F┃총층 1~5F┃입주 2026.02.01 부터┃융자 없음 교통 상수역 (6호선) 도보 5분 | ||
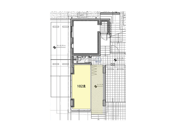
'함께주택 6호'의 상업 공간 이름만 들었을 뿐인데 그 거리의 바이브가 저절로 떠오르는 동네가 있습니다. 홍대, 상수동도 그런 동네 중 하나로, 활력이 넘칠 것 같은 상수동에 위치한 상업 공간을 소개합니다. 협동조합 건물이라 2~5층에 거주하는 입주민들을 위한 커뮤니티실을 1층에 두었는데, 현재 이 커뮤니티실 앞 공간 - 근린생활시설(102호)을 사용할 임차인을 모집하고 있습니다. 102호는 직사각형 구조로, 원데이 클래스 공간으로 사용한다면 길이가 짧은 양면으로 싱크대와 수납장을 두고 가운데에 테이블을 배치하면 어떨까 해요. 이 공간의 장점은 작은 면적임에도 삼면에 시원스러운 창과 폴딩도어를 설치해 실제보다 더 넓게 느껴진다는 점. 그리고 102호와 주차장 사이 공간을 전용할 수 있다는 점입니다. 약 11.2㎡니까 결코 작지 않은 공간이에요. 폴딩도어만 열면 이 공간까지 확장하여 사용이 가능합니다. 키 큰 식물들로 주차장 쪽을 차폐하면 한층 더 아늑한 공간이 만들어질 거예요. 화장실은 102호 바로 옆에 위치해 있습니다. 홍익대학교 이면이라 근방에 재미난 상점들이 많고 유동인구가 꾸준한 곳입니다. 다양한 이벤트가 일어날 가능성이 높은 동네에요. 상업지역에 비해 비교적 조용한 편이라 차분한 공간을 찾는 분들이나 테이크아웃 커피숍, 플라워숍, 서점, 원데이 클래스 등을 위한 공간을 찾는 분들에게 추천합니다. ☆ 협동조합 건물로 102호 임차 시 조합원 가입이 의무입니다. 출자금(30만원)이 있으며, 탈퇴 시 환급 가능합니다. ☆ 업로드된 사진은 신축 당시 촬영한 사진으로 현재는 임차인이 뷰티숍으로 사용 중입니다. |
| 위치 | 서울시 마포구 상수동 86-29 | 업데이트 | 2025.12.24 | ||
| 주구조 | 철큰콘크리트조 | 주용도 | 제2종근린생활시설(일반음식점) | 사용승인일 | 2022.12.22 |
| 권리금 | 냉난방기 및 싱크대 등 시설 권리금 3,000,000원 | 서비스공간 | 11.2㎡(외부) | ||
| 방향/기준 | 남동향/주출입구 | 난방종류 | 전기 | 엘리베이터 | O(거주자 전용) |
| 주차/주차비 | 주차 희망시 조합원 회의 통해 협의/결정(총 주차대수 3대) | 계약전력 | - | ||
| 화장실 | 1개/옥외/남녀공용/냉온수 | 반려동물 | - | ||
| 옵션 | 기본 조명, 폴딩도어 | ||||
| 간판 | 위치 및 규격 협의 | 계약단위 | 최소 2년 | ||
| 추천업종 | 테이크아웃 커피숍, 원데이 클래스 공간, 플라워숍, 서점 등 | ||||
| 관리비 | 일반관리비 3만원 (정액)
사용료 (실비)
| ||||
| 비고 | 건물 내 흡연 불가, 조합원 가입 의무로 출자금 30만원 발생(계약 만기로 탈퇴 시 환급) | ||||
| 최대 중개보수 | 중개보수 = 거래금액 x 상한요율 (VAT 별도) ▶ 중개보수 계산기
| ||||
| 설계 | 시공 | 아틀리에건설 | 매물 담당 | 전명희 | |
| 글 | 전명희 | 사진 | 전명희 | 도면 | - |
마포구 상수동 '함께주택' 근생 102호 서울시┃마포구┃상수동 월세 1,100/95만원┃관리비 3만원 (VAT 별도) 계약면적 16.79㎡┃전용면적 16.79㎡ 화장실 1개/옥외/남녀공용┃주차 1대/옥외┃엘리베이터 있음 해당층 1F┃총층 1~5F┃입주 2026.02.01 부터┃융자 없음 교통 상수역 (6호선) 도보 5분 | ||
'함께주택 6호'의 상업 공간 이름만 들었을 뿐인데 그 거리의 바이브가 저절로 떠오르는 동네가 있습니다. 홍대, 상수동도 그런 동네 중 하나로, 활력이 넘칠 것 같은 상수동에 위치한 상업 공간을 소개합니다. 협동조합 건물이라 2~5층에 거주하는 입주민들을 위한 커뮤니티실을 1층에 두었는데, 현재 이 커뮤니티실 앞 공간 - 근린생활시설(102호)을 사용할 임차인을 모집하고 있습니다. 102호는 직사각형 구조로, 원데이 클래스 공간으로 사용한다면 길이가 짧은 양면으로 싱크대와 수납장을 두고 가운데에 테이블을 배치하면 어떨까 해요. 이 공간의 장점은 작은 면적임에도 삼면에 시원스러운 창과 폴딩도어를 설치해 실제보다 더 넓게 느껴진다는 점. 그리고 102호와 주차장 사이 공간을 전용할 수 있다는 점입니다. 약 11.2㎡니까 결코 작지 않은 공간이에요. 폴딩도어만 열면 이 공간까지 확장하여 사용이 가능합니다. 키 큰 식물들로 주차장 쪽을 차폐하면 한층 더 아늑한 공간이 만들어질 거예요. 화장실은 102호 바로 옆에 위치해 있습니다. 홍익대학교 이면이라 근방에 재미난 상점들이 많고 유동인구가 꾸준한 곳입니다. 다양한 이벤트가 일어날 가능성이 높은 동네에요. 상업지역에 비해 비교적 조용한 편이라 차분한 공간을 찾는 분들이나 테이크아웃 커피숍, 플라워숍, 서점, 원데이 클래스 등을 위한 공간을 찾는 분들에게 추천합니다. ☆ 협동조합 건물로 102호 임차 시 조합원 가입이 의무입니다. 출자금(30만원)이 있으며, 탈퇴 시 환급 가능합니다. ☆ 업로드된 사진은 신축 당시 촬영한 사진으로 현재는 임차인이 뷰티숍으로 사용 중입니다. |
| 위치 | 서울시 마포구 상수동 86-29 | 업데이트 | 2025.12.24 | ||
| 주구조 | 철큰콘크리트조 | 주용도 | 제2종근린생활시설(일반음식점) | 사용승인일 | 2022.12.22 |
| 권리금 | 냉난방기 및 싱크대 등 시설 권리금 3,000,000원 | 서비스공간 | 11.2㎡(외부) | ||
| 방향/기준 | 남동향/주출입구 | 난방종류 | 전기 | 엘리베이터 | O(거주자 전용) |
| 주차/주차비 | 주차 희망시 조합원 회의 통해 협의/결정(총 주차대수 3대) | 계약전력 | - | ||
| 화장실 | 1개/옥외/남녀공용/냉온수 | 반려동물 | - | ||
| 옵션 | 기본 조명, 폴딩도어 | ||||
| 간판 | 위치 및 규격 협의 | 계약단위 | 최소 2년 | ||
| 추천업종 | 테이크아웃 커피숍, 원데이 클래스 공간, 플라워숍, 서점 등 | ||||
| 관리비 | 일반관리비 3만원 (정액)
사용료 (실비)
| ||||
| 비고 | 건물 내 흡연 불가, 조합원 가입 의무로 출자금 30만원 발생(계약 만기로 탈퇴 시 환급) | ||||
| 최대 중개보수 | 중개보수 = 거래금액 x 상한요율 (VAT 별도) ▶ 중개보수 계산기
| ||||
| 설계 | 시공 | 아틀리에건설 | 매물 담당 | 전명희 | |
| 글 | 전명희 | 사진 | 전명희 | 도면 | - |

