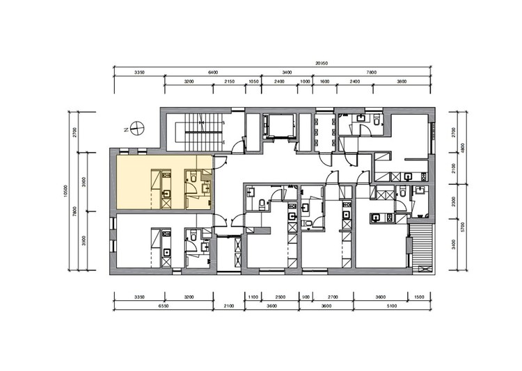
원룸은 잠시 머무는 '방'이 아닌 오래 살고 싶은 '집'이어야 합니다. 현관문을 여는 순간 집 내부가 훤히 들여다보이는 보통의 원룸형 오피스텔과 다르게 화운원(401호)은 복도 공간이 가장 먼저 나타납니다. 쉽사리 내부 공간을 짐작할 수 없는 구조로, 사는 사람의 프라이버시를 존중해주는 구조를 갖고 있어요. 복도 공간 왼편으로는 주방과 욕실이 위치해 있고, 복도 끝으로는 침대를 놓을 수 있는 생활 공간을 두었는데요. 주방/욕실 공간이 생활 공간과 분리되어 있어 공간 활용성도 좋고, 분리된 생활 공간에서는 나만의 온전한 시간을 누릴 수 있습니다. 책상이나 화장대로 사용하기 좋은 테이블이 붙박이장 사이에 설치되어 있으니 여러분은 맘에 드는 의자 하나만 챙겨오시면 돼요 :) 주방은 1인분의 식사를 기꺼이 즐겁게 준비할 수 있도록 쾌적하게 조성되어 있습니다. 전기레인지(하이라이트)와 빌트인 냉장고, 드럼세탁기가 옵션으로 설치되어 있으니 참고하세요. 욕실 공간도 궁금하실 텐데요. 물 튈 걱정이 없는 널찍한 세면대뿐만 아니라 샤워부스까지 따로 설치되어 있는 본연의 기능에 충실한 욕실입니다. 요즘 새로 지어지는 원룸형 오피스텔의 전용면적이 17~18㎡(5평)로 10년 전과 비교해 절반 수준으로 작아지고 있습니다. 수익률 유지를 위해 면적을 줄이는 방법을 택한 건데요. 화운원의 오피스텔 전용면적은 20~45㎡(6~14평)로 쾌적한 주거 환경을 갖추고 있습니다. 여유 있는 면적 때문인지 나만의 공간으로 어서 꾸미고 싶어지는 원룸입니다. 그리고 여러 사람의 라이프스타일과 취향을 반영할 수 있도록 1R~1DK로 평면을 다양화했으니 화운원에서 나에게 맘에 드는 공간을 발견해보세요. 인터뷰 <화운원 건축주> 바로가기 |
원룸은 잠시 머무는 '방'이 아닌 오래 살고 싶은 '집'이어야 합니다. 현관문을 여는 순간 집 내부가 훤히 들여다보이는 보통의 원룸형 오피스텔과 다르게 화운원(401호)은 복도 공간이 가장 먼저 나타납니다. 쉽사리 내부 공간을 짐작할 수 없는 구조로, 사는 사람의 프라이버시를 존중해주는 구조를 갖고 있어요. 복도 공간 왼편으로는 주방과 욕실이 위치해 있고, 복도 끝으로는 침대를 놓을 수 있는 생활 공간을 두었는데요. 주방/욕실 공간이 생활 공간과 분리되어 있어 공간 활용성도 좋고, 분리된 생활 공간에서는 나만의 온전한 시간을 누릴 수 있습니다. 책상이나 화장대로 사용하기 좋은 테이블이 붙박이장 사이에 설치되어 있으니 여러분은 맘에 드는 의자 하나만 챙겨오시면 돼요 :) 주방은 1인분의 식사를 기꺼이 즐겁게 준비할 수 있도록 쾌적하게 조성되어 있습니다. 전기레인지(하이라이트)와 빌트인 냉장고, 드럼세탁기가 옵션으로 설치되어 있으니 참고하세요. 욕실 공간도 궁금하실 텐데요. 물 튈 걱정이 없는 널찍한 세면대뿐만 아니라 샤워부스까지 따로 설치되어 있는 본연의 기능에 충실한 욕실입니다. 요즘 새로 지어지는 원룸형 오피스텔의 전용면적이 17~18㎡(5평)로 10년 전과 비교해 절반 수준으로 작아지고 있습니다. 수익률 유지를 위해 면적을 줄이는 방법을 택한 건데요. 화운원의 오피스텔 전용면적은 20~45㎡(6~14평)로 쾌적한 주거 환경을 갖추고 있습니다. 여유 있는 면적 때문인지 나만의 공간으로 어서 꾸미고 싶어지는 원룸입니다. 그리고 여러 사람의 라이프스타일과 취향을 반영할 수 있도록 1R~1DK로 평면을 다양화했으니 화운원에서 나에게 맘에 드는 공간을 발견해보세요. 인터뷰 <화운원 건축주> 바로가기 |