경기도 성남시 분당구 운중동 단독주택 경기도┃성남시┃분당구┃운중동 매매 35억원 (5,114만원/3.3㎡) 대지면적 226.3㎡┃연면적 244.45㎡ 구조 5LDK┃방 5개/분리형┃화장실 4개 해당층 B1~2F┃총층 B1~2F┃입주 협의 교통 버스정류장 (운중초등학교) 도보 2분 | ||
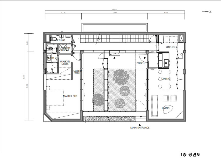
담대하게 그리고 다정하게 이 집은 누군가를 닮았습니다. 겉모습은 단단하고 믿음직스럽고, 속은 섬세하고 따뜻한 사람. 타인을 배려할 줄 알고, 가족을 위한 공간에는 부드러운 여백을 남겨두는 사람. 운중동 단독주택은 그런 사람의 성격과 삶의 방식을 공간으로 옮겨 놓은 듯한 신뢰가 가는 집입니다. 그 성격을 가장 먼저 느낄 수 있었던 곳이 바로 이 집의 중심, 중정이었어요. ㄷ자 구조의 중심에 자리한 이 중정 덕분에 실내 어디서든 자연을 마주할 수 있습니다. 운중동 단독주택은 관리가 번거로운 잔디 대신, 사계절의 변화를 담은 정원으로 마당을 대신하고 있어요. 규모도 적당해서 일상에 여유를 더해주기에 충분합니다. 중정 한쪽에는 이동식 풀장을 놓거나 소규모 바비큐 파티를 열 수 있을 만큼의 공간이 마련돼 있고, 외부에는 적당한 높이의 담이 설치되어 프라이버시도 잘 확보되어 있습니다. 또한 중정을 가로지르는 3:1 비율의 파티션은 시선을 자연스럽게 나눠줄 뿐 아니라, 실용적인 수납 공간으로도 활용할 수 있도록 세심하게 설계되어 있어요. 중정을 지나 현관으로 진입하면 이번에는 시원한 개방감을 선사하는 거실과 주방을 만나게 됩니다. 1층의 천장고는 무려 3.9m. 바닥부터 천장까지 이어지는 커다란 유리 도어가 자연을 실내로 들여와 시간에 따라 변하는 햇살과 그림자를 고스란히 공간에 담아냅니다. 낮 동안에는 별도의 조명이 필요 없을 만큼 빛이 가득 차, 집이 마치 방문자를 따뜻하게 환영하는 듯한 기분을 느끼게 해줍니다. 거실과 주방 반대편에 위치한 마스터룸과 세탁실, 화장실에 가기 위해서는 전이공간과도 같은 복도를 지나야 하는데요. 문득 사적인 공간인 침실로 가기 위해 중정 연못의 징검돌을 건너가야 하는 필립 존슨의 <타운 하우스>가 떠올랐습니다. 전이공간을 스쳐 지나갈 때의 기분 좋은 오묘함을 여러분도 경험해 보셨으면 좋겠어요. 참고로 1층 마스터룸도 거실처럼 중정과 연결되어 있는 구조이고, 필요 시 화장실과 갤러리 월 사이에 붙박이장을 설치할 수 있는 충분한 여유 공간이 확보되어 있습니다(주방에도 싱크대 상부장과 하부장을 연장할 수 있는 여유 공간이 있어요).
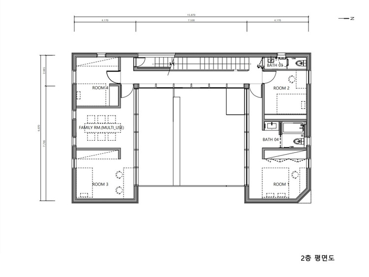
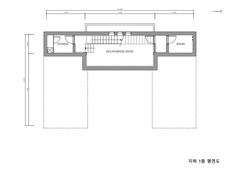
1층 마스터룸보다는 크기는 작지만, 2층에도 독립 화장실을 갖춘 또 하나의 마스터룸이 존재합니다. 이 방을 포함해 2층에는 총 네 개의 침실이 포진되어 있는데 가족 구성이나 생활 방식에 따라 다양한 용도로 활용할 수 있어요. 그중 일부는 멀티룸이 함께 구성된 침실도 있어 서재나 취미 공간 등으로 확장해 상상력을 더해볼 수 있습니다. 지하층은 외부 소음이 비교적 잘 차단되는 구조라 음악 감상이나 연주 공간으로 특히 추천드리고 싶어요. AV룸이나 당구장처럼 여가 공간으로 꾸며도 좋고, 조용한 독서실, 홈짐 또는 취미방 등으로도 충분히 활용 가능합니다. 또한 지하 공간 양쪽 끝에 창고 공간이 있어 예상보다 훨씬 실용적으로 사용할 수 있을 거예요. 이렇듯 공간 하나하나가 저마다의 역할과 위계를 가지고 있고, 전체적으로는 간결하면서도 균형 잡힌 구조를 이루고 있다는 점이 이 집의 가장 큰 매력입니다. 운중동 단독주택에서 삶의 다양한 변화를 유연하게 담을 수 있는 여백 그리고 질서 있고 정돈된 환경이 주는 안정감을 느껴보세요. 집 가까이에는 운중천을 따라 조성된 자전거길이 있어 가볍게 산책하거나 가족과 라이딩을 즐기기도 좋습니다. 운중초등학교는 도보 5분 거리이고, 서판교역(운중동 중산운사거리)도 내년에 개통할 예정이라니 강남권으로의 접근성이 더욱 좋아질 것 같아요. 사실 저는 이런 편리함보다 한적하고 여유로운 동네 분위기에 매료됐는데요. 마음 놓고 아이들과 좋아하는 것들을 할 수 있는 운중동 단독주택에서 아이들과 흙장난도 하고, 물놀이도 하고, 정원도 가꾸고, 자전거도 타고, 걱정 없이 뛰어노는 삶을 시작해 보는 건 어떠세요?
☆ [층별 면적] B1F : 주택 48.65㎡ / 1F : 주택 97.74㎡ / 2F : 주택 98.06㎡ ▶ 면적 계산기 ☆ 최근에 전반적인 성능개선을 포함한 내부 리모델링을 진행했습니다. ☆ 사진은 1F ▷ 2F ▷ 옥상 ▷ B1F ▷ 외관 순으로 정리했습니다. ☆ 도면에 점선으로 표기된 가구는 공간 사용 예시(참고용)입니다. |
| 위치 | 경기도 성남시 분당구 운중동 | 업데이트 | 2026.03.24 | ||
| 주구조 | 철근콘크리트조 | 주용도 | 단독주택 | 사용승인일 | 2010.12.23 |
| 방 | 5개(분리형) | 화장실 | 4개(욕조 O) | 엘리베이터 | 없음 |
| 방향/기준 | 남향/거실 | 난방종류 | 도시가스(개별) | 서비스공간 | - |
| 주차 | 2대 (총 주차대수 2대) | ||||
| 지역/지구 | 도시지역, 제1종전용주거지역, 지구단위계획구역 | 등록임대주택 | 미등록 | ||
| 옵션 | 빌트인 가구 및 가전(천장형에어컨, 전기쿡탑), 비디오폰, 전자도어락 | ||||
| 기타시설 | CCTV, 보안출입문, 화재경보기 | ||||
| 관리비 | 일반관리비 없음
사용료 (실비)
| ||||
| 비고 | 몰드프로젝트에서 전반적인 성능개선을 포함한 리모델링 진행(2025년 상반기), 2층 천장고 3m, B1층 천장고 3.3m | ||||
| 최대 중개보수 | 중개보수 = 거래금액 x 상한요율 (VAT 별도) ▶ 중개보수 계산기
| ||||
| 설계 | 시공 | 이안알앤씨 | 매물 담당 | 전명희 | |
| 글 | 전명희 | 사진 | 전명희 | 도면 | 소유자 |
경기도 성남시 분당구 운중동 단독주택 경기도┃성남시┃분당구┃운중동 매매 35억원 (5,114만원/3.3㎡) 대지면적 226.3㎡┃연면적 244.45㎡ 구조 5LDK┃방 5개/분리형┃화장실 4개 해당층 B1~2F┃총층 B1~2F┃입주 협의 교통 버스정류장 (운중초등학교) 도보 2분 | ||
담대하게 그리고 다정하게 이 집은 누군가를 닮았습니다. 겉모습은 단단하고 믿음직스럽고, 속은 섬세하고 따뜻한 사람. 타인을 배려할 줄 알고, 가족을 위한 공간에는 부드러운 여백을 남겨두는 사람. 운중동 단독주택은 그런 사람의 성격과 삶의 방식을 공간으로 옮겨 놓은 듯한 신뢰가 가는 집입니다. 그 성격을 가장 먼저 느낄 수 있었던 곳이 바로 이 집의 중심, 중정이었어요. ㄷ자 구조의 중심에 자리한 이 중정 덕분에 실내 어디서든 자연을 마주할 수 있습니다. 운중동 단독주택은 관리가 번거로운 잔디 대신, 사계절의 변화를 담은 정원으로 마당을 대신하고 있어요. 규모도 적당해서 일상에 여유를 더해주기에 충분합니다. 중정 한쪽에는 이동식 풀장을 놓거나 소규모 바비큐 파티를 열 수 있을 만큼의 공간이 마련돼 있고, 외부에는 적당한 높이의 담이 설치되어 프라이버시도 잘 확보되어 있습니다. 또한 중정을 가로지르는 3:1 비율의 파티션은 시선을 자연스럽게 나눠줄 뿐 아니라, 실용적인 수납 공간으로도 활용할 수 있도록 세심하게 설계되어 있어요. 중정을 지나 현관으로 진입하면 이번에는 시원한 개방감을 선사하는 거실과 주방을 만나게 됩니다. 1층의 천장고는 무려 3.9m. 바닥부터 천장까지 이어지는 커다란 유리 도어가 자연을 실내로 들여와 시간에 따라 변하는 햇살과 그림자를 고스란히 공간에 담아냅니다. 낮 동안에는 별도의 조명이 필요 없을 만큼 빛이 가득 차, 집이 마치 방문자를 따뜻하게 환영하는 듯한 기분을 느끼게 해줍니다. 거실과 주방 반대편에 위치한 마스터룸과 세탁실, 화장실에 가기 위해서는 전이공간과도 같은 복도를 지나야 하는데요. 문득 사적인 공간인 침실로 가기 위해 중정 연못의 징검돌을 건너가야 하는 필립 존슨의 <타운 하우스>가 떠올랐습니다. 전이공간을 스쳐 지나갈 때의 기분 좋은 오묘함을 여러분도 경험해 보셨으면 좋겠어요. 참고로 1층 마스터룸도 거실처럼 중정과 연결되어 있는 구조이고, 필요 시 화장실과 갤러리 월 사이에 붙박이장을 설치할 수 있는 충분한 여유 공간이 확보되어 있습니다(주방에도 싱크대 상부장과 하부장을 연장할 수 있는 여유 공간이 있어요).
1층 마스터룸보다는 크기는 작지만, 2층에도 독립 화장실을 갖춘 또 하나의 마스터룸이 존재합니다. 이 방을 포함해 2층에는 총 네 개의 침실이 포진되어 있는데 가족 구성이나 생활 방식에 따라 다양한 용도로 활용할 수 있어요. 그중 일부는 멀티룸이 함께 구성된 침실도 있어 서재나 취미 공간 등으로 확장해 상상력을 더해볼 수 있습니다. 지하층은 외부 소음이 비교적 잘 차단되는 구조라 음악 감상이나 연주 공간으로 특히 추천드리고 싶어요. AV룸이나 당구장처럼 여가 공간으로 꾸며도 좋고, 조용한 독서실, 홈짐 또는 취미방 등으로도 충분히 활용 가능합니다. 또한 지하 공간 양쪽 끝에 창고 공간이 있어 예상보다 훨씬 실용적으로 사용할 수 있을 거예요. 이렇듯 공간 하나하나가 저마다의 역할과 위계를 가지고 있고, 전체적으로는 간결하면서도 균형 잡힌 구조를 이루고 있다는 점이 이 집의 가장 큰 매력입니다. 운중동 단독주택에서 삶의 다양한 변화를 유연하게 담을 수 있는 여백 그리고 질서 있고 정돈된 환경이 주는 안정감을 느껴보세요. 집 가까이에는 운중천을 따라 조성된 자전거길이 있어 가볍게 산책하거나 가족과 라이딩을 즐기기도 좋습니다. 운중초등학교는 도보 5분 거리이고, 서판교역(운중동 중산운사거리)도 내년에 개통할 예정이라니 강남권으로의 접근성이 더욱 좋아질 것 같아요. 사실 저는 이런 편리함보다 한적하고 여유로운 동네 분위기에 매료됐는데요. 마음 놓고 아이들과 좋아하는 것들을 할 수 있는 운중동 단독주택에서 아이들과 흙장난도 하고, 물놀이도 하고, 정원도 가꾸고, 자전거도 타고, 걱정 없이 뛰어노는 삶을 시작해 보는 건 어떠세요?
☆ [층별 면적] B1F : 주택 48.65㎡ / 1F : 주택 97.74㎡ / 2F : 주택 98.06㎡ ▶ 면적 계산기 ☆ 최근에 전반적인 성능개선을 포함한 내부 리모델링을 진행했습니다. ☆ 사진은 1F ▷ 2F ▷ 옥상 ▷ B1F ▷ 외관 순으로 정리했습니다. ☆ 도면에 점선으로 표기된 가구는 공간 사용 예시(참고용)입니다. |
| 위치 | 경기도 성남시 분당구 운중동 | 업데이트 | 2026.03.24 | ||
| 주구조 | 철근콘크리트조 | 주용도 | 단독주택 | 사용승인일 | 2010.12.23 |
| 방 | 5개(분리형) | 화장실 | 4개(욕조 O) | 엘리베이터 | 없음 |
| 방향/기준 | 남향/거실 | 난방종류 | 도시가스(개별) | 서비스공간 | - |
| 주차 | 2대 (총 주차대수 2대) | ||||
| 지역/지구 | 도시지역, 제1종전용주거지역, 지구단위계획구역 | 등록임대주택 | 미등록 | ||
| 옵션 | 빌트인 가구 및 가전(천장형에어컨, 전기쿡탑), 비디오폰, 전자도어락 | ||||
| 기타시설 | CCTV, 보안출입문, 화재경보기 | ||||
| 관리비 | 일반관리비 없음
사용료 (실비)
| ||||
| 비고 | 몰드프로젝트에서 전반적인 성능개선을 포함한 리모델링 진행(2025년 상반기), 2층 천장고 3m, B1층 천장고 3.3m | ||||
| 최대 중개보수 | 중개보수 = 거래금액 x 상한요율 (VAT 별도) ▶ 중개보수 계산기
| ||||
| 설계 | 시공 | 이안알앤씨 | 매물 담당 | 전명희 | |
| 글 | 전명희 | 사진 | 전명희 | 도면 | 소유자 |

