종로구 구기동 다가구주택 101호 서울시┃종로구┃구기동 전세 3억5,000만원┃관리비 6만원 월세 2억/75만원 또는 1억/125만원 ┃관리비 6만원 전용면적 33.96㎡┃실사용면적 40.76㎡ 구조 1LDK/단층┃방수 1개/분리형┃욕실수 1개 해당층 1F┃총층 B1~3F┃입주 즉시┃융자 있음 교통 버스정류장 (구기터널입구) 도보 3분 | ||
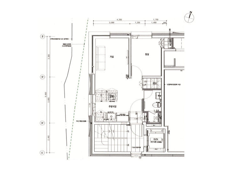
산과 집이 서로를 비추는 집 구기터널 앞 신호에 멈출 때면, 제 시선은 늘 한 건물에 머뭅니다. 그 건물은 바로 용산 국제학교 교사 사택. 독특한 디자인 덕분에 진흥로를 지날 때마다 호기심이 일고, 기분마저 환해집니다. 앞으로는 그 즐거움이 두 배로 늘어날 것 같아요. 최근 교사 사택 인근에 근사한 다가구주택이 새로 들어섰거든요. 언덕 지형에 자리한 지하 1층부터 지상 3층 규모의 건물로, 전 층에서 북한산 자락의 푸른 숲과 탁 트인 하늘을 감상할 수 있습니다. 지하층에는 주차장과 공용 출입구가 마련되어 있으며, 지상층은 3가구가 각각 한 층씩 독립적으로 생활할 수 있는 구조로 설계되었습니다. 101호에서 가장 인상 깊었던 건 시각적 개방감이었습니다. 거실과 방이 나란히 배치되어 있는데 두 공간 모두 큼직한 창을 품고 있죠. 그래서 현관에 들어서면 1LDK의 소형 평면이 아니라 더 넓은 집에 들어선 듯한 시각적 확장을 경험하게 됩니다. 북한산을 향해 열려 있는 (1층 같지 않은) 전망 덕분에 그 효과가 더 크게 느껴지는 것 같아요. 거실에 앉아 있으면 산세가 집을 감싸는 듯한 기분마저 들어요. 주방은 거실과 연결된 대면형 구조입니다. 소형 평형의 경우 식탁 자리가 애매한 경우가 많은데 아일랜드 조리대 앞에 폭이 좁고 기다란 식탁을 두면 어떨까 합니다. 요리와 식사가 자연스럽게 이어지고, 주방 분위기를 바꿀 수 있을 거예요. 오후가 되면 거실과 주방으로 햇살이 깊숙이 스며듭니다. 해가 기울 무렵에는 창이 붉게 물들어요. 북쪽에 창을 가진 방은 이런 밝은 거실·주방과 달리 하루 종일 차분한 조도를 유지하는데요. 아늑한 분위기에 직사광선이 들지 않아서 침실이나 옷방으로 사용하기 좋은 환경을 갖췄습니다. 개인적으로 서로 맞닿아 있는 거실과 방의 명암이 극명하게 대비되는 점이 좋았어요. 방과 화장실 사이에 양쪽으로 열리는 문이 있는데 세탁실 문입니다. 세탁 공간을 따로 마련해 두었어요. 이 건물이 자리한 구기동은 서울 종로구의 북서쪽, 북한산 자락에 기댄 평화로운 주거지입니다. 산세에 둘러싸인 지형 덕분에 도심 속에서도 숲과 계곡을 가까이 누릴 수 있고, 고급 빌라와 단정한 주택들이 함께 어우러져 있습니다. 집을 나선지 얼마 지나지 않아 만나게 되는 북한산 둘레길은 강아지와 함께 산책하기에 제격이고, 구기계곡을 따라 놓인 비봉2길은 청량제 같은 계곡물 소리를 듣고 싶을 때 산책하기 좋습니다. 건물 50m 반경 안에 버스정류장, 편의점, 파출소가 있으니 참고하세요. ☆ 신축 다가구주택으로 임대보증금 보증 가입이 불가합니다. ☆ 전세대출 관련 조건은 은행별 심사 기준과 정부 규제에 따라 수시로 달라집니다. 전세대출 가능 여부는 반드시 은행을 통해 확인해 주세요. ☆ 별도의 수납 공간이 없어 짐이 적은 1인 가구에게 추천합니다. 방 사진에 보이는 문은 붙박이장 문이 아닌 보일러실 문입니다. ☆ 화장실에 샤워부스 및 거울 설치 전에 촬영한 사진입니다. |
| 위치 | 서울시 종로구 구기동 124-5 | 업데이트 | 2025.11.02 | ||
| 주구조 | 철근콘크리트조 | 주용도 | 다가구주택 | 사용승인일 | 2025.10.23 |
| 방 수 | 1개 (분리형) | 욕실 수 | 1개 | 서비스공간 | - |
| 방향/기준 | 서향/거실 | 난방종류 | 도시가스 (개별) | 엘리베이터 | O |
| 주차/주차비 | 1대/없음 (총 주차대수 4대) | 반려동물 | O | ||
| 등록임대주택 | 미등록 | 보증금대출 | 개별확인 | 보증보험 | X |
| 옵션 | 중문, 신발장, 기본조명, 천장형에어컨 2대, 싱크대, 전기쿡탑(인덕션), 냉장고, 세면대, 변기, 샤워기, 샤워부스, 비디오폰, 디지털도어락 | ||||
| 기타시설 | 공용부 CCTV, 보안출입문, 우편함 | 계약단위 | 최소 2년 | ||
| 관리비 | 일반관리비 6만원 (정액/신축 건물로 비목별 금액 확인 불가)
사용료 (실비)
| ||||
| 비고 | 별도의 세탁실 있음, 건물 내 흡연 불가 | ||||
| 최대 중개보수 | 중개보수 = 거래금액 x 상한요율 (VAT 별도) >> 중개보수 계산기
| ||||
| 설계 | 시공 | - | 매물 담당 | 전명희 | |
| 글 | 전명희 | 사진 | 전명희 | 도면 | 소수 건축 |
종로구 구기동 다가구주택 101호 서울시┃종로구┃구기동 전세 3억5,000만원┃관리비 6만원 월세 2억/75만원 또는 1억/125만원 ┃관리비 6만원 전용면적 33.96㎡┃실사용면적 40.76㎡ 구조 1LDK/단층┃방수 1개/분리형┃욕실수 1개 해당층 1F┃총층 B1~3F┃입주 즉시┃융자 있음 교통 버스정류장 (구기터널입구) 도보 3분 | ||
산과 집이 서로를 비추는 집 구기터널 앞 신호에 멈출 때면, 제 시선은 늘 한 건물에 머뭅니다. 그 건물은 바로 용산 국제학교 교사 사택. 독특한 디자인 덕분에 진흥로를 지날 때마다 호기심이 일고, 기분마저 환해집니다. 앞으로는 그 즐거움이 두 배로 늘어날 것 같아요. 최근 교사 사택 인근에 근사한 다가구주택이 새로 들어섰거든요. 언덕 지형에 자리한 지하 1층부터 지상 3층 규모의 건물로, 전 층에서 북한산 자락의 푸른 숲과 탁 트인 하늘을 감상할 수 있습니다. 지하층에는 주차장과 공용 출입구가 마련되어 있으며, 지상층은 3가구가 각각 한 층씩 독립적으로 생활할 수 있는 구조로 설계되었습니다. 101호에서 가장 인상 깊었던 건 시각적 개방감이었습니다. 거실과 방이 나란히 배치되어 있는데 두 공간 모두 큼직한 창을 품고 있죠. 그래서 현관에 들어서면 1LDK의 소형 평면이 아니라 더 넓은 집에 들어선 듯한 시각적 확장을 경험하게 됩니다. 북한산을 향해 열려 있는 (1층 같지 않은) 전망 덕분에 그 효과가 더 크게 느껴지는 것 같아요. 거실에 앉아 있으면 산세가 집을 감싸는 듯한 기분마저 들어요. 주방은 거실과 연결된 대면형 구조입니다. 소형 평형의 경우 식탁 자리가 애매한 경우가 많은데 아일랜드 조리대 앞에 폭이 좁고 기다란 식탁을 두면 어떨까 합니다. 요리와 식사가 자연스럽게 이어지고, 주방 분위기를 바꿀 수 있을 거예요. 오후가 되면 거실과 주방으로 햇살이 깊숙이 스며듭니다. 해가 기울 무렵에는 창이 붉게 물들어요. 북쪽에 창을 가진 방은 이런 밝은 거실·주방과 달리 하루 종일 차분한 조도를 유지하는데요. 아늑한 분위기에 직사광선이 들지 않아서 침실이나 옷방으로 사용하기 좋은 환경을 갖췄습니다. 개인적으로 서로 맞닿아 있는 거실과 방의 명암이 극명하게 대비되는 점이 좋았어요. 방과 화장실 사이에 양쪽으로 열리는 문이 있는데 세탁실 문입니다. 세탁 공간을 따로 마련해 두었어요. 이 건물이 자리한 구기동은 서울 종로구의 북서쪽, 북한산 자락에 기댄 평화로운 주거지입니다. 산세에 둘러싸인 지형 덕분에 도심 속에서도 숲과 계곡을 가까이 누릴 수 있고, 고급 빌라와 단정한 주택들이 함께 어우러져 있습니다. 집을 나선지 얼마 지나지 않아 만나게 되는 북한산 둘레길은 강아지와 함께 산책하기에 제격이고, 구기계곡을 따라 놓인 비봉2길은 청량제 같은 계곡물 소리를 듣고 싶을 때 산책하기 좋습니다. 건물 50m 반경 안에 버스정류장, 편의점, 파출소가 있으니 참고하세요. ☆ 신축 다가구주택으로 임대보증금 보증 가입이 불가합니다. ☆ 전세대출 관련 조건은 은행별 심사 기준과 정부 규제에 따라 수시로 달라집니다. 전세대출 가능 여부는 반드시 은행을 통해 확인해 주세요. ☆ 별도의 수납 공간이 없어 짐이 적은 1인 가구에게 추천합니다. 방 사진에 보이는 문은 붙박이장 문이 아닌 보일러실 문입니다. ☆ 화장실에 샤워부스 및 거울 설치 전에 촬영한 사진입니다. |
| 위치 | 서울시 종로구 구기동 124-5 | 업데이트 | 2025.11.02 | ||
| 주구조 | 철근콘크리트조 | 주용도 | 다가구주택 | 사용승인일 | 2025.10.23 |
| 방 수 | 1개 (분리형) | 욕실 수 | 1개 | 서비스공간 | - |
| 방향/기준 | 서향/거실 | 난방종류 | 도시가스 (개별) | 엘리베이터 | O |
| 주차/주차비 | 1대/없음 (총 주차대수 4대) | 반려동물 | O | ||
| 등록임대주택 | 미등록 | 보증금대출 | 개별확인 | 보증보험 | X |
| 옵션 | 중문, 신발장, 기본조명, 천장형에어컨 2대, 싱크대, 전기쿡탑(인덕션), 냉장고, 세면대, 변기, 샤워기, 샤워부스, 비디오폰, 디지털도어락 | ||||
| 기타시설 | 공용부 CCTV, 보안출입문, 우편함 | 계약단위 | 최소 2년 | ||
| 관리비 | 일반관리비 6만원 (정액/신축 건물로 비목별 금액 확인 불가)
사용료 (실비)
| ||||
| 비고 | 별도의 세탁실 있음, 건물 내 흡연 불가 | ||||
| 최대 중개보수 | 중개보수 = 거래금액 x 상한요율 (VAT 별도) >> 중개보수 계산기
| ||||
| 설계 | 시공 | - | 매물 담당 | 전명희 | |
| 글 | 전명희 | 사진 | 전명희 | 도면 | 소수 건축 |

