종로구 구기동 다가구주택 301호 서울시┃종로구┃구기동 전세 7억원┃관리비 10만원 월세 6억/50만원 또는 5억/100만원┃관리비 10만원 전용면적 63.13㎡┃실사용면적 77.46㎡ + 옥상정원 구조 3LDK/단층┃방수 3개/분리형┃욕실수 2개 해당층 3F┃총층 B1~3F┃입주 즉시┃융자 있음 교통 버스정류장 (구기터널입구) 도보 3분 | ||
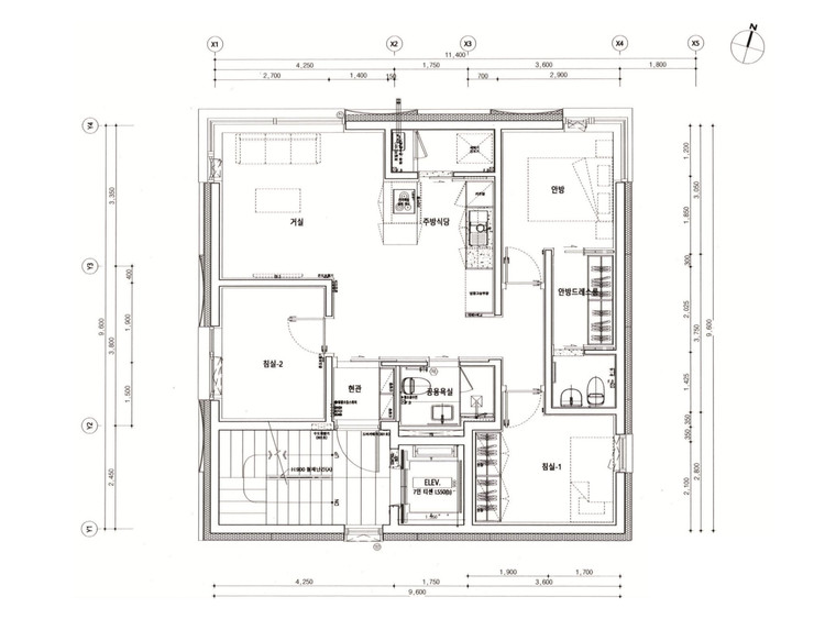
산과 집이 서로를 비추는 집 구기터널 앞 신호에 멈출 때면, 제 시선은 늘 한 건물에 머뭅니다. 그 건물은 바로 용산 국제학교 교사 사택. 독특한 디자인 덕분에 진흥로를 지날 때마다 호기심이 일고, 기분마저 환해집니다. 앞으로는 그 즐거움이 두 배로 늘어날 것 같아요. 최근 교사 사택 인근에 근사한 다가구주택이 새로 들어섰거든요. 언덕 지형에 자리한 지하 1층부터 지상 3층 규모의 건물로, 전 층에서 북한산 자락의 푸른 숲과 탁 트인 하늘을 감상할 수 있습니다. 지하층에는 주차장과 공용 출입구가 마련되어 있으며, 지상층은 3가구가 각각 한 층씩 독립적으로 생활할 수 있는 구조로 설계되었습니다. 301호는 9.6m × 9.6m 정사각형 박스 형태로, ‘거실 + 주방 + 다용도실(세탁실) + 두 개의 화장실 + 세 개의 방 + 드레스룸’으로 구성되어 있습니다. 거실은 물론, 창이 난 모든 공간에서 북한산을 바라볼 수 있어 집 안 어디서든 싱그러운 자연을 느낄 수 있습니다. 바쁜 일상 속에서도 자연과 교감하며 살고 싶은 분들께 권하고 싶은 집입니다. 주방은 조리대가 거실을 향해 놓인 대면형 구조로 설계 되었습니다. 북한산이 보이는 맞은편의 큰 창 덕분에 라면 물을 끓이는 짧은 순간조차 지루할 틈이 없는 구조입니다. 만약 제가 이 집에 살게 된다면, 아일랜드 조리대 옆에 빵을 만들 수 있는 작업대를 하나 더 두고 싶어요. 또 거실 벽면에는 식탁 겸용으로 사용할 수 있는 큰 테이블을 배치하고, 코너창 바로 아래에는 1인용 리클라이너를 놓아 햇살과 풍경을 즐기며 휴식하는 공간으로 꾸미고 싶습니다. 이 집의 거실과 주방을 보며, 여러분은 어떤 가구 배치를 상상하게 되시나요? 오후가 되면 햇살이 거실과 침실-2(도면 표기 참고) 깊숙이 스며들고, 해가 기울 무렵에는 창이 붉게 물들며 또 다른 풍경을 만들어냅니다. 서향창을 가진 침실-2와 달리, 안쪽에 자리한 두 개의 방은 동향 창을 갖추고 있어 아침 햇살로 하루를 산뜻하게 시작하기에 제격입니다. 침실-1에는 붙박이장이, 안방에는 드레스룸과 전용 화장실이 갖춰져 있어 생활의 편리함과 공간 활용도를 높였어요. 301호 위층에는 특별한 공간이 숨겨져 있습니다. 바로 301호 입주자만 단독으로 이용할 수 있는 옥상입니다. 이곳에 오르면 시야를 가리는 건물 없이 산자락과 하늘이 시원하게 펼쳐져 탁 트인 개방감을 느낄 수 있습니다. 아이들이 마음껏 뛰놀 수 있는 안전한 마당으로, 혹은 가족과 지인과 함께 바비큐를 즐기는 야외 다이닝 공간으로 활용하기에도 안성맞춤입니다. 플랜트 박스에 샐러드 채소나 허브를 길러보는 것도 즐거운 경험이 될 거예요. 이 건물이 자리한 구기동은 서울 종로구의 북서쪽, 북한산 자락에 기댄 평화로운 주거지입니다. 산세에 둘러싸인 지형 덕분에 도심 속에서도 숲과 계곡을 가까이 누릴 수 있고, 고급 빌라와 단정한 주택들이 함께 어우러져 있습니다. 집을 나선지 얼마 지나지 않아 만나게 되는 북한산 둘레길은 강아지와 함께 산책하기에 제격이고, 구기계곡을 따라 놓인 비봉2길은 청량제 같은 계곡물 소리를 듣고 싶을 때 산책하기 좋습니다. 건물 50m 반경 안에 버스정류장, 편의점, 파출소가 있으니 참고하세요. ☆ 전세로만 진행하며, 신축 다가구주택으로 임대보증금 보증 가입은 불가합니다. ☆ 전세대출 관련 조건은 은행별 심사 기준과 정부 규제에 따라 수시로 달라집니다. 전세대출 가능 여부는 반드시 은행을 통해 확인해 주세요. ☆ 화장실에 샤워부스 및 거울 설치 전에 촬영한 사진입니다. 옥상도 마감 공사(바닥, 벽, 난간, 플랜트 박스)가 덜 끝난 상태에서 찍었어요. 공사 완료 후 사진을 교체할 예정입니다. |
| 위치 | 서울시 종로구 구기동 124-5 | 업데이트 | 2025.11.02 | ||
| 주구조 | 철근콘크리트조 | 주용도 | 다가구주택 | 사용승인일 | 2025.10.23 |
| 방 수 | 3개 (분리형) | 욕실 수 | 2개 | 서비스공간 | 옥상정원 |
| 방향/기준 | 서향/거실 | 난방종류 | 도시가스 (개별) | 엘리베이터 | O |
| 주차/주차비 | 1대/없음 (총 주차대수 4대) | 반려동물 | O | ||
| 등록임대주택 | 미등록 | 보증금대출 | 개별확인 | 보증보험 | X |
| 옵션 | 중문, 신발장, 붙박이장, 기본조명, 천장형에어컨 4대, 싱크대, 전기쿡탑(인덕션), 세면대, 변기, 샤워기, 샤워부스, 비디오폰, 디지털도어락 | ||||
| 기타시설 | 공용부 CCTV, 보안출입문, 우편함 | 계약단위 | 최소 2년 | ||
| 관리비 | 일반관리비 10만원 (정액/신축 건물로 비목별 금액 확인 불가)
사용료 (실비)
| ||||
| 비고 | 드레스룸 및 별도의 세탁실 있음, 단독으로 옥상정원 사용, 건물 내 흡연 불가 | ||||
| 최대 중개보수 | 중개보수 = 거래금액 x 상한요율 (VAT 별도) >> 중개보수 계산기
| ||||
| 설계 | 시공 | - | 매물 담당 | 전명희 | |
| 글 | 전명희 | 사진 | 전명희 | 도면 | 소수 건축 |
종로구 구기동 다가구주택 301호 서울시┃종로구┃구기동 전세 7억원┃관리비 10만원 월세 6억/50만원 또는 5억/100만원┃관리비 10만원 전용면적 63.13㎡┃실사용면적 77.46㎡ + 옥상정원 구조 3LDK/단층┃방수 3개/분리형┃욕실수 2개 해당층 3F┃총층 B1~3F┃입주 즉시┃융자 있음 교통 버스정류장 (구기터널입구) 도보 3분 | ||
산과 집이 서로를 비추는 집 구기터널 앞 신호에 멈출 때면, 제 시선은 늘 한 건물에 머뭅니다. 그 건물은 바로 용산 국제학교 교사 사택. 독특한 디자인 덕분에 진흥로를 지날 때마다 호기심이 일고, 기분마저 환해집니다. 앞으로는 그 즐거움이 두 배로 늘어날 것 같아요. 최근 교사 사택 인근에 근사한 다가구주택이 새로 들어섰거든요. 언덕 지형에 자리한 지하 1층부터 지상 3층 규모의 건물로, 전 층에서 북한산 자락의 푸른 숲과 탁 트인 하늘을 감상할 수 있습니다. 지하층에는 주차장과 공용 출입구가 마련되어 있으며, 지상층은 3가구가 각각 한 층씩 독립적으로 생활할 수 있는 구조로 설계되었습니다. 301호는 9.6m × 9.6m 정사각형 박스 형태로, ‘거실 + 주방 + 다용도실(세탁실) + 두 개의 화장실 + 세 개의 방 + 드레스룸’으로 구성되어 있습니다. 거실은 물론, 창이 난 모든 공간에서 북한산을 바라볼 수 있어 집 안 어디서든 싱그러운 자연을 느낄 수 있습니다. 바쁜 일상 속에서도 자연과 교감하며 살고 싶은 분들께 권하고 싶은 집입니다. 주방은 조리대가 거실을 향해 놓인 대면형 구조로 설계 되었습니다. 북한산이 보이는 맞은편의 큰 창 덕분에 라면 물을 끓이는 짧은 순간조차 지루할 틈이 없는 구조입니다. 만약 제가 이 집에 살게 된다면, 아일랜드 조리대 옆에 빵을 만들 수 있는 작업대를 하나 더 두고 싶어요. 또 거실 벽면에는 식탁 겸용으로 사용할 수 있는 큰 테이블을 배치하고, 코너창 바로 아래에는 1인용 리클라이너를 놓아 햇살과 풍경을 즐기며 휴식하는 공간으로 꾸미고 싶습니다. 이 집의 거실과 주방을 보며, 여러분은 어떤 가구 배치를 상상하게 되시나요? 오후가 되면 햇살이 거실과 침실-2(도면 표기 참고) 깊숙이 스며들고, 해가 기울 무렵에는 창이 붉게 물들며 또 다른 풍경을 만들어냅니다. 서향창을 가진 침실-2와 달리, 안쪽에 자리한 두 개의 방은 동향 창을 갖추고 있어 아침 햇살로 하루를 산뜻하게 시작하기에 제격입니다. 침실-1에는 붙박이장이, 안방에는 드레스룸과 전용 화장실이 갖춰져 있어 생활의 편리함과 공간 활용도를 높였어요. 301호 위층에는 특별한 공간이 숨겨져 있습니다. 바로 301호 입주자만 단독으로 이용할 수 있는 옥상입니다. 이곳에 오르면 시야를 가리는 건물 없이 산자락과 하늘이 시원하게 펼쳐져 탁 트인 개방감을 느낄 수 있습니다. 아이들이 마음껏 뛰놀 수 있는 안전한 마당으로, 혹은 가족과 지인과 함께 바비큐를 즐기는 야외 다이닝 공간으로 활용하기에도 안성맞춤입니다. 플랜트 박스에 샐러드 채소나 허브를 길러보는 것도 즐거운 경험이 될 거예요. 이 건물이 자리한 구기동은 서울 종로구의 북서쪽, 북한산 자락에 기댄 평화로운 주거지입니다. 산세에 둘러싸인 지형 덕분에 도심 속에서도 숲과 계곡을 가까이 누릴 수 있고, 고급 빌라와 단정한 주택들이 함께 어우러져 있습니다. 집을 나선지 얼마 지나지 않아 만나게 되는 북한산 둘레길은 강아지와 함께 산책하기에 제격이고, 구기계곡을 따라 놓인 비봉2길은 청량제 같은 계곡물 소리를 듣고 싶을 때 산책하기 좋습니다. 건물 50m 반경 안에 버스정류장, 편의점, 파출소가 있으니 참고하세요. ☆ 전세로만 진행하며, 신축 다가구주택으로 임대보증금 보증 가입은 불가합니다. ☆ 전세대출 관련 조건은 은행별 심사 기준과 정부 규제에 따라 수시로 달라집니다. 전세대출 가능 여부는 반드시 은행을 통해 확인해 주세요. ☆ 화장실에 샤워부스 및 거울 설치 전에 촬영한 사진입니다. 옥상도 마감 공사(바닥, 벽, 난간, 플랜트 박스)가 덜 끝난 상태에서 찍었어요. 공사 완료 후 사진을 교체할 예정입니다. |
| 위치 | 서울시 종로구 구기동 124-5 | 업데이트 | 2025.11.02 | ||
| 주구조 | 철근콘크리트조 | 주용도 | 다가구주택 | 사용승인일 | 2025.10.23 |
| 방 수 | 3개 (분리형) | 욕실 수 | 2개 | 서비스공간 | 옥상정원 |
| 방향/기준 | 서향/거실 | 난방종류 | 도시가스 (개별) | 엘리베이터 | O |
| 주차/주차비 | 1대/없음 (총 주차대수 4대) | 반려동물 | O | ||
| 등록임대주택 | 미등록 | 보증금대출 | 개별확인 | 보증보험 | X |
| 옵션 | 중문, 신발장, 붙박이장, 기본조명, 천장형에어컨 4대, 싱크대, 전기쿡탑(인덕션), 세면대, 변기, 샤워기, 샤워부스, 비디오폰, 디지털도어락 | ||||
| 기타시설 | 공용부 CCTV, 보안출입문, 우편함 | 계약단위 | 최소 2년 | ||
| 관리비 | 일반관리비 10만원 (정액/신축 건물로 비목별 금액 확인 불가)
사용료 (실비)
| ||||
| 비고 | 드레스룸 및 별도의 세탁실 있음, 단독으로 옥상정원 사용, 건물 내 흡연 불가 | ||||
| 최대 중개보수 | 중개보수 = 거래금액 x 상한요율 (VAT 별도) >> 중개보수 계산기
| ||||
| 설계 | 시공 | - | 매물 담당 | 전명희 | |
| 글 | 전명희 | 사진 | 전명희 | 도면 | 소수 건축 |

