송파구 거여동 '무이(MOOI)' 202호 서울시┃송파구┃거여동 월세 5,000/180만원┃관리비 10만원 월세 1억/160만원┃관리비 10만원 전용면적 38.67㎡┃실사용면적 54.12㎡ (발코니 확장면적 포함) 구조 1LDK/단층┃방수 1개/분리형┃욕실수 1개 해당층 2F┃총층 B1~4F ┃입주 즉시┃융자 있음 교통 버스정류장 도보 4분, 북위례역 도보 1분(2026년 예정), 마천역 (5호선) 도보 15분 | ||
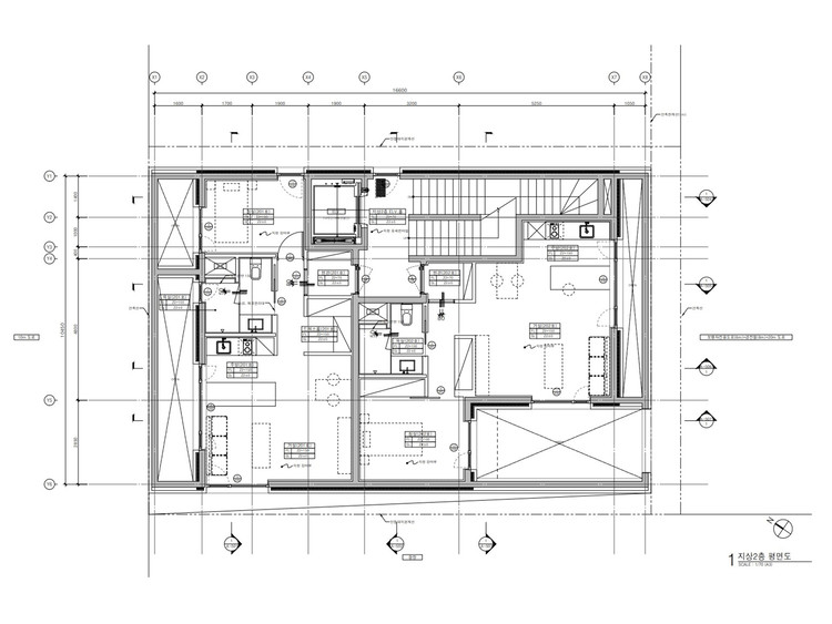
하루를 담는 1LDK 빛이 잘 드는 집이라 해가 쨍쨍한 날을 고르고 골라 '무이(MOOI)'를 찾았습니다. 한동안 흐리고 비 오는 날이 계속돼 마음이 초조한 상태로 현장에 도착했어요. 일기예보가 틀리지 않기를 간절히 바랐건만 날씨 요정은 제 편이 아니었습니다. 제가 있는 곳만 해가 구름에 가려져 있지 뭐예요. 잠시 기운이 빠졌지만, 눈앞에 선 근사한 벽돌 건물을 보는 순간 기대감이 급상승했습니다. 건물 이름을 괜히 ‘무이’라고 지은 게 아니구나 싶었죠(네덜란드어로 mooi는 ‘아름다운’, ‘예쁜’, ‘멋진’을 뜻합니다). 본 건물은 근린생활시설과 다가구주택이 혼합된 상가주택으로, 이번에 소개할 공간은 그중 2층의 1LDK 원룸입니다. 중문을 열면 두 가지 선택권이 주어집니다. 직진이냐 좌회전이냐. 직진하면 사적영역(침실, 욕실, 수납공간)이, 좌회전하면 공적영역(거실, 주방)이 나타나요. 이 원룸은 복도형 구성을 통해 사적 영역과 공적 영역을 자연스럽게 분리시켰습니다. 직진하면 만나게 되는 복도의 한쪽 면에는 천장 높이에 맞춘 수납장이 배치되어 있고, 반대편에는 욕실이 나란하게 자리하고 있습니다. 침실은 독립된 방 형태로, 한쪽 벽 전체가 붙박이장으로 구성되어 있어요. 침실 안밖에 붙박이장이 설치되어 있어서 원룸이지만 충분한 수납이 가능합니다. 침실 한면을 차지하고 있는 큰 창 너머로는 트램이 지나가는 모습을 볼 수 있는데요, '무이' 건물 바로 앞이 트램 정거장이에요. ᴗ ̫ ᴗ 거실과 주방은 이 집의 중심이자 가장 개방적인 공간입니다. 별다른 경계 없이 이어진 두 공간은 한 방향을 바라보며, 남서향의 큰 창을 통해 부드럽게 스며드는 빛을 공유합니다. 창밖으로 보이는 붉은 벽돌이 따뜻하게 느껴지기도 하고, 외부 시선을 차단해 안정감을 줍니다. 고개를 창 아래로 내리면 화단을, 위로 올리면 푸른 하늘을 볼 수 있습니다. 1LDK치고 여유로운 품을 지녀 가구 배치의 제약이 거의 없을 거예요. 소파와 식탁을 모두 두기에 충분하고, 거실과 주방이 한 몸처럼 이어져 요리와 식사, 대화가 자연스럽게 흐를 것 같습니다. 참고로 아일랜드 조리대 끝부분이 바 형태로 돌출되어 있어서 식사나 간단한 작업 공간으로 활용할 수 있습니다. 매일의 일상이 차분하게 쌓이고, 빛과 시간이 천천히 머무는 곳. 그 고요한 리듬 속에서 ‘무이’라는 이름이 가진 의미처럼, 평범한 하루가 조용히 아름다워지는 집이었습니다. ☆ 신축 다가구주택으로 보증보험 가입이 어렵습니다. ☆ 마천역(5호선)~복정역(8호선·수인분당선)·남위례역(8호선)을 잇는 위례선(트램) 도시철도가 2026년 8월에 개통합니다. 북위례역이 '무이' 건물 바로 앞에 생겨요! (약 10m 거리) |
| 위치 | 서울시 송파구 거여동 616-7 | 업데이트 | 2025.10.28 | ||
| 주구조 | 철근콘크리트조 | 주용도 | 다가구주택 | 사용승인일 | 2025.09.30 |
| 방 수 | 1개 (분리형) | 욕실 수 | 1개 | 서비스공간 | - |
| 방향/기준 | 남서향/거실 | 난방종류 | 도시가스 (개별) | 엘리베이터 | O |
| 주차/주차비 | 1대/없음 (총 주차대수 5대) | 반려동물 | O | ||
| 등록임대주택 | 미등록 | 보증금대출 | 개별확인 | 보증보험 | X |
| 옵션 | 중문, 신발장, 붙박이장, 기본조명, 천장형에어컨 2대, 싱크대, 전기쿡탑(인덕션), 빌트인냉장고, 드럼세탁기(건조 O), 세면대, 변기, 샤워기, 샤워부스, 욕실스프레이건, 비디오폰, 디지털도어락 | ||||
| 기타시설 | 공용부 CCTV, 보안출입문, 우편함, 화재경보기 | 계약단위 | 최소 2년 | ||
| 관리비 | 일반관리비 10만원 (정액/신축 건물로 비목별 금액 확인 불가)
사용료 (실비)
| ||||
| 비고 | 건물 내 흡연 불가 | ||||
| 최대 중개보수 | 중개보수 = 거래금액 x 상한요율 (VAT 별도) >> 중개보수 계산기
| ||||
| 설계 | 시공 | (주)엔원종합건설 | 매물 담당 | 전명희 | |
| 글 | 전명희 | 사진 | 전명희 | 도면 | 서가 건축 |
송파구 거여동 '무이(MOOI)' 202호 서울시┃송파구┃거여동 월세 5,000/180만원┃관리비 10만원 월세 1억/160만원┃관리비 10만원 전용면적 38.67㎡┃실사용면적 54.12㎡ (발코니 확장면적 포함) 구조 1LDK/단층┃방수 1개/분리형┃욕실수 1개 해당층 2F┃총층 B1~4F ┃입주 즉시┃융자 있음 교통 버스정류장 도보 4분, 북위례역 도보 1분(2026년 예정), 마천역 (5호선) 도보 15분 | ||
하루를 담는 1LDK 빛이 잘 드는 집이라 해가 쨍쨍한 날을 고르고 골라 '무이(MOOI)'를 찾았습니다. 한동안 흐리고 비 오는 날이 계속돼 마음이 초조한 상태로 현장에 도착했어요. 일기예보가 틀리지 않기를 간절히 바랐건만 날씨 요정은 제 편이 아니었습니다. 제가 있는 곳만 해가 구름에 가려져 있지 뭐예요. 잠시 기운이 빠졌지만, 눈앞에 선 근사한 벽돌 건물을 보는 순간 기대감이 급상승했습니다. 건물 이름을 괜히 ‘무이’라고 지은 게 아니구나 싶었죠(네덜란드어로 mooi는 ‘아름다운’, ‘예쁜’, ‘멋진’을 뜻합니다). 본 건물은 근린생활시설과 다가구주택이 혼합된 상가주택으로, 이번에 소개할 공간은 그중 2층의 1LDK 원룸입니다. 중문을 열면 두 가지 선택권이 주어집니다. 직진이냐 좌회전이냐. 직진하면 사적영역(침실, 욕실, 수납공간)이, 좌회전하면 공적영역(거실, 주방)이 나타나요. 이 원룸은 복도형 구성을 통해 사적 영역과 공적 영역을 자연스럽게 분리시켰습니다. 직진하면 만나게 되는 복도의 한쪽 면에는 천장 높이에 맞춘 수납장이 배치되어 있고, 반대편에는 욕실이 나란하게 자리하고 있습니다. 침실은 독립된 방 형태로, 한쪽 벽 전체가 붙박이장으로 구성되어 있어요. 침실 안밖에 붙박이장이 설치되어 있어서 원룸이지만 충분한 수납이 가능합니다. 침실 한면을 차지하고 있는 큰 창 너머로는 트램이 지나가는 모습을 볼 수 있는데요, '무이' 건물 바로 앞이 트램 정거장이에요. ᴗ ̫ ᴗ 거실과 주방은 이 집의 중심이자 가장 개방적인 공간입니다. 별다른 경계 없이 이어진 두 공간은 한 방향을 바라보며, 남서향의 큰 창을 통해 부드럽게 스며드는 빛을 공유합니다. 창밖으로 보이는 붉은 벽돌이 따뜻하게 느껴지기도 하고, 외부 시선을 차단해 안정감을 줍니다. 고개를 창 아래로 내리면 화단을, 위로 올리면 푸른 하늘을 볼 수 있습니다. 1LDK치고 여유로운 품을 지녀 가구 배치의 제약이 거의 없을 거예요. 소파와 식탁을 모두 두기에 충분하고, 거실과 주방이 한 몸처럼 이어져 요리와 식사, 대화가 자연스럽게 흐를 것 같습니다. 참고로 아일랜드 조리대 끝부분이 바 형태로 돌출되어 있어서 식사나 간단한 작업 공간으로 활용할 수 있습니다. 매일의 일상이 차분하게 쌓이고, 빛과 시간이 천천히 머무는 곳. 그 고요한 리듬 속에서 ‘무이’라는 이름이 가진 의미처럼, 평범한 하루가 조용히 아름다워지는 집이었습니다. ☆ 신축 다가구주택으로 보증보험 가입이 어렵습니다. ☆ 마천역(5호선)~복정역(8호선·수인분당선)·남위례역(8호선)을 잇는 위례선(트램) 도시철도가 2026년 8월에 개통합니다. 북위례역이 '무이' 건물 바로 앞에 생겨요! (약 10m 거리) |
| 위치 | 서울시 송파구 거여동 616-7 | 업데이트 | 2025.10.28 | ||
| 주구조 | 철근콘크리트조 | 주용도 | 다가구주택 | 사용승인일 | 2025.09.30 |
| 방 수 | 1개 (분리형) | 욕실 수 | 1개 | 서비스공간 | - |
| 방향/기준 | 남서향/거실 | 난방종류 | 도시가스 (개별) | 엘리베이터 | O |
| 주차/주차비 | 1대/없음 (총 주차대수 5대) | 반려동물 | O | ||
| 등록임대주택 | 미등록 | 보증금대출 | 개별확인 | 보증보험 | X |
| 옵션 | 중문, 신발장, 붙박이장, 기본조명, 천장형에어컨 2대, 싱크대, 전기쿡탑(인덕션), 빌트인냉장고, 드럼세탁기(건조 O), 세면대, 변기, 샤워기, 샤워부스, 욕실스프레이건, 비디오폰, 디지털도어락 | ||||
| 기타시설 | 공용부 CCTV, 보안출입문, 우편함, 화재경보기 | 계약단위 | 최소 2년 | ||
| 관리비 | 일반관리비 10만원 (정액/신축 건물로 비목별 금액 확인 불가)
사용료 (실비)
| ||||
| 비고 | 건물 내 흡연 불가 | ||||
| 최대 중개보수 | 중개보수 = 거래금액 x 상한요율 (VAT 별도) >> 중개보수 계산기
| ||||
| 설계 | 시공 | (주)엔원종합건설 | 매물 담당 | 전명희 | |
| 글 | 전명희 | 사진 | 전명희 | 도면 | 서가 건축 |

