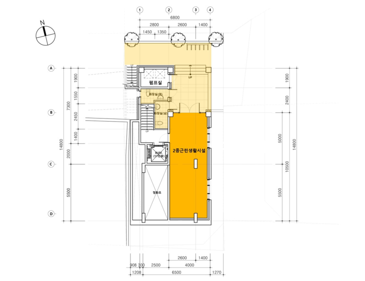
동대문구 제기동 '마이바움' 근생 B101호 서울시┃동대문구┃제기동 월세 2,000/115만원┃관리비 10만원 (VAT 별도) 전용면적 42㎡┃실사용면적 42㎡+테라스 화장실 2개/옥내/남녀구분┃주차 가능┃엘리베이터 있음 해당층 B1F┃총층 B1~5F┃입주 2025.11.20부터/협의┃융자 있음 교통 안암역 (6호선) 도보 8분 | ||
유리 프레임 속에 계절을 담은 공간 안암역에서 도보로 8분이면 만날 수 있는 멋진 테라스를 품은 업무/상업 공간을 소개합니다. 회색 블록으로 마감된 담장과 화단으로 둘러싸인 넓은 테라스를 단독으로 사용할 수 있는 흔치 않은 기회! 건물 내부의 중앙 계단과 외부 계단(1층 초록문을 통해 바로 지하 공간으로 접근 가능)을 통해 출입이 가능하도록 디자인 했습니다. 실 내부에서 창밖으로 보이는 테라스 공간과 그 너머로 보이는 회색 담장, 그리고 초록 식물이 잘 어우러진 모습이 인상적인 공간으로, 회색의 차분함과 초록의 싱그러움을 동시에 선사하는 것 같습니다. 내부는 직사각형으로 형태로 상부에는 두 개의 환기창이 있고, 바닥은 포세린 타일로 마감되어 있습니다. 흰색으로 도장된 벽면에 매입등이 설치되어 있어서 전반적으로 깔끔한 인상을 줍니다. 공간 중앙부와 벽면부 끝 쪽에 기둥이 세워져 있는데 커튼으로 두 기둥을 연결시켜 작은 창고를 만들어 보는 건 어떨까요? 수납선반이나 책장을 활용해 인테리어를 해도 좋을 것 같습니다. 사무실, 작업실 등의 용도로 사용한다면 온전한 집중과 휴식을 누릴 수 있을 거예요. 또는 "이런 곳에 이런 가게가!" 라는 느낌을 줄 수 있는 위치에 가게(쇼룸, 공방 등)를 열고 싶은 분에게도 이 공간을 추천합니다. 숨겨진 나만 알고 싶은 느낌의 동네 가게, 생각만 해도 즐거워지네요. 제기동 근생 매물은 매력적인 외부공간을 가진 덕에 창밖으로 사계절의 변화를 365일/24시간 느낄 수 있고, 충분한 양의 빛과 공기가 유입되어 쾌적하게 사용할 수 있는, 지하지만 지하처럼 느껴지지 않는 특별한 공간입니다. 무엇보다 그 외부공간을 단독으로 사용할 수 있다는 점이 참 매력적이죠. 외부와 시각적, 공간적으로 분리된 나만의 아지트 같은 은밀한 매력을 지닌 공간을 찾는다면 이곳부터 방문해보세요. ☆ 1층에서 녹색문을 통해 바로 지하1층으로 내려갈 수도 있고, 엘리베이터 또는 계단실을 통해 지하1층으로 내려갈 수 있습니다. ☆ 전용면적은 42㎡이나, 단독으로 사용 가능한 넓은 외부공간(테라스 및 화단)이 있습니다. ☆ 신축 당시(2021.06) 촬영한 사진이며, 현재는 임차인이 사무실로 사용 중입니다. ☆ 화장실은 외부 공간(테라스)에 위치해 있으며, 화장실 사진은 세면대를 설치하기 전의 사진입니다. |
| 위치 | 서울시 동대문구 제기동 67-70외 2필지 | 업데이트 | 2025.11.03 | ||
| 주구조 | 철근콘크리트조 | 주용도 | 제2종근생 (사무소) | 사용승인일 | 2021.06.10 |
| 권리금 | 없음 | 서비스공간 | 테라스 | ||
| 방향/기준 | 북동향/테라스 | 난방종류 | 전기(개별) | 엘리베이터 | O |
| 주차/주차비 | 1대/월5만원 (총 주차대수 5대) | 계약전력 | 5kW | ||
| 화장실 | 2개/옥외/남녀구분 | 반려동물 | - | ||
| 옵션 | 기본조명, 야외 테이블 및 의자 * 냉난방기와 가벽 인수인계 가능(인수 비용 미정) | ||||
| 간판 | 디자인 및 규격 협의 | 계약단위 | 최소 2년 | ||
| 추천업종 | 사무실, 작업실, 공방 등 | ||||
| 관리비 | 일반관리비 10만원(정액)
사용료 (실비)
| ||||
| 비고 | 전용 테라스 및 화단 있음 | ||||
| 최대 중개보수 | 중개보수 = 거래금액 x 상한요율 (VAT 별도) ▶ 중개보수 계산기
| ||||
| 설계 | 수목건축 | 시공 | 건현종합건설 | 매물 담당 | 전명희 |
| 글 | 전명희 | 사진 | 전명희 | 도면 | 소유자 |
동대문구 제기동 '마이바움' 근생 B101호 서울시┃동대문구┃제기동 월세 2,000/115만원┃관리비 10만원 (VAT 별도) 전용면적 42㎡┃실사용면적 42㎡+테라스 화장실 2개/옥내/남녀구분┃주차 가능┃엘리베이터 있음 해당층 B1F┃총층 B1~5F┃입주 2025.11.20부터/협의┃융자 있음 교통 안암역 (6호선) 도보 8분 | ||
유리 프레임 속에 계절을 담은 공간 안암역에서 도보로 8분이면 만날 수 있는 멋진 테라스를 품은 업무/상업 공간을 소개합니다. 회색 블록으로 마감된 담장과 화단으로 둘러싸인 넓은 테라스를 단독으로 사용할 수 있는 흔치 않은 기회! 건물 내부의 중앙 계단과 외부 계단(1층 초록문을 통해 바로 지하 공간으로 접근 가능)을 통해 출입이 가능하도록 디자인 했습니다. 실 내부에서 창밖으로 보이는 테라스 공간과 그 너머로 보이는 회색 담장, 그리고 초록 식물이 잘 어우러진 모습이 인상적인 공간으로, 회색의 차분함과 초록의 싱그러움을 동시에 선사하는 것 같습니다. 내부는 직사각형으로 형태로 상부에는 두 개의 환기창이 있고, 바닥은 포세린 타일로 마감되어 있습니다. 흰색으로 도장된 벽면에 매입등이 설치되어 있어서 전반적으로 깔끔한 인상을 줍니다. 공간 중앙부와 벽면부 끝 쪽에 기둥이 세워져 있는데 커튼으로 두 기둥을 연결시켜 작은 창고를 만들어 보는 건 어떨까요? 수납선반이나 책장을 활용해 인테리어를 해도 좋을 것 같습니다. 사무실, 작업실 등의 용도로 사용한다면 온전한 집중과 휴식을 누릴 수 있을 거예요. 또는 "이런 곳에 이런 가게가!" 라는 느낌을 줄 수 있는 위치에 가게(쇼룸, 공방 등)를 열고 싶은 분에게도 이 공간을 추천합니다. 숨겨진 나만 알고 싶은 느낌의 동네 가게, 생각만 해도 즐거워지네요. 제기동 근생 매물은 매력적인 외부공간을 가진 덕에 창밖으로 사계절의 변화를 365일/24시간 느낄 수 있고, 충분한 양의 빛과 공기가 유입되어 쾌적하게 사용할 수 있는, 지하지만 지하처럼 느껴지지 않는 특별한 공간입니다. 무엇보다 그 외부공간을 단독으로 사용할 수 있다는 점이 참 매력적이죠. 외부와 시각적, 공간적으로 분리된 나만의 아지트 같은 은밀한 매력을 지닌 공간을 찾는다면 이곳부터 방문해보세요. ☆ 1층에서 녹색문을 통해 바로 지하1층으로 내려갈 수도 있고, 엘리베이터 또는 계단실을 통해 지하1층으로 내려갈 수 있습니다. ☆ 전용면적은 42㎡이나, 단독으로 사용 가능한 넓은 외부공간(테라스 및 화단)이 있습니다. ☆ 신축 당시(2021.06) 촬영한 사진이며, 현재는 임차인이 사무실로 사용 중입니다. ☆ 화장실은 외부 공간(테라스)에 위치해 있으며, 화장실 사진은 세면대를 설치하기 전의 사진입니다. |
| 위치 | 서울시 동대문구 제기동 67-70외 2필지 | 업데이트 | 2025.11.03 | ||
| 주구조 | 철근콘크리트조 | 주용도 | 제2종근생 (사무소) | 사용승인일 | 2021.06.10 |
| 권리금 | 없음 | 서비스공간 | 테라스 | ||
| 방향/기준 | 북동향/테라스 | 난방종류 | 전기(개별) | 엘리베이터 | O |
| 주차/주차비 | 1대/월5만원 (총 주차대수 5대) | 계약전력 | 5kW | ||
| 화장실 | 2개/옥외/남녀구분 | 반려동물 | - | ||
| 옵션 | 기본조명, 야외 테이블 및 의자 * 냉난방기와 가벽 인수인계 가능(인수 비용 미정) | ||||
| 간판 | 디자인 및 규격 협의 | 계약단위 | 최소 2년 | ||
| 추천업종 | 사무실, 작업실, 공방 등 | ||||
| 관리비 | 일반관리비 10만원(정액)
사용료 (실비)
| ||||
| 비고 | 전용 테라스 및 화단 있음 | ||||
| 최대 중개보수 | 중개보수 = 거래금액 x 상한요율 (VAT 별도) ▶ 중개보수 계산기
| ||||
| 설계 | 수목건축 | 시공 | 건현종합건설 | 매물 담당 | 전명희 |
| 글 | 전명희 | 사진 | 전명희 | 도면 | 소유자 |

