광진구 화양동 '숲속의 집' 302호 서울시┃광진구┃화양동 월세 5,000/70만원┃관리비 9만원 전용면적 16.12㎡┃실사용면적 16.12㎡ 구조 1R/단층┃방수 1개/오픈형┃욕실수 1개 해당층 3F┃총층 B1~7F┃입주 2026.02.17/협의불가┃융자 있음 교통 어린이대공원역 (7호선) 도보 4분 / 건대입구역 (2호선) 도보 8분 | ||
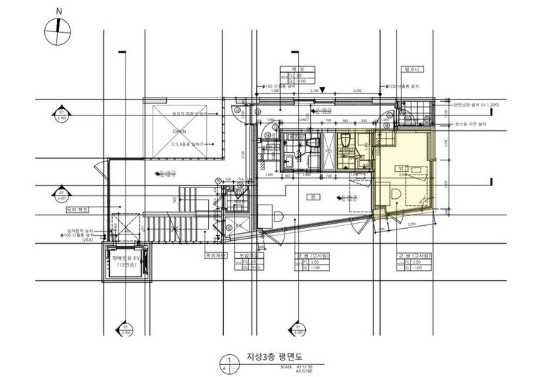
숲속의 집에 오신 걸 환영합니다 '숲속의 집' 3층 2호 라인에 들어서자마자 FKJ*의 숲속 스튜디오가 연상됐습니다. 그의 멋진 음악들이 탄생되는 바로 그 환상적인 음악 작업실이 눈앞에 재현된 느낌이었어요. 막상 도심 속에서 이런 공간을 만나니 비현실적으로 다가왔을 정도예요. 일단 현관문을 열면 코너창 너머로 보이는 녹색이 단번에 시선을 사로잡습니다. 그리고 마음을 흔들어 댑니다. 새의 울음소리가 마치 '그래, 이 집이야~'라고 속삭이는 것처럼 들리기도. 햇빛에 반짝이는 나뭇잎도 그 나뭇잎이 만들어내는 그림자도 온통 사람의 마음을 술렁이게 합니다. *FKJ: French Kiwi Juice / 일렉트로닉 팝 아티스트 사다리꼴 형태를 가진 2호 라인에는 널찍한 코너창이 설치되어 있습니다. 녹색 전망은 말할 것도 없고, 동쪽과 남쪽을 향하고 있는 코너창으로 하루 종일 빛이 풍부하게 들어옵니다. 보통의 집보다 천장고가 30cm 높아서 트로피컬 한 분위기가 더욱 극대화되는 것 같습니다. 집안에서 식물을 키우지 않아도 트로피컬 인테리어를 완성할 수 있는 집이랄까요. 가끔 창문을 열어 새들이 지저귀는 노랫소리도 듣고, 바람 한 줌도 느껴 보았으면 합니다. 정말이지 코너창 앞에 안락한 의자 하나 가져다 두고, 가만히 앉아만 있어도 숲에서 산림욕 하는 기분이 들 것 같은 집입니다. 원룸 화장실이라기엔 면적도 작지 않고, 와이드 한 세면대와 샤워부스가 설치되어 있으니 쾌적하게 사용하세요. 그리고 화장실 안에서도 창밖 풍경을 감상할 수 있으니 방문 시 잊지 말고 체크해 보길 바라요. 지하철역과도 꽤 가까운 거리인데 숲을 품은 집을 만날 수 있다는 건 굉장한 행운인 것 같습니다. 이곳에서 지낸다면 휴양지로 휴가 온 기분이 들 것 같아요. 휴식과 활력을 얻을 수 있는 집이란 생각이 듭니다. 건축물 용도가 다중생활시설(고시원)이라 보증금 대출이나 보증보험 가입이 어렵고, 주방을 공동으로 사용해야 함에도 불구하고 말이죠. '숲속의 집'에서 사계절이 변화하는 모습을 오롯이 경험하고 싶다면 어서 별집의 문을 두드려 주세요! 화양동은 7호선 어린이대공원역과 2호선 건대입구역 사이에 위치한 동네입니다. 인근에 세종대와 건국대가 있어서인지 거리에서 특유의 활기찬 바이브가 느껴져요. 롯데백화점, 스타시티몰, 이마트, CGV, 로데오거리와 같은 생활 편의시설이 즐비하고, 트렌디하고 가성비 좋은 맛집이 많은 동네이기도 합니다. 서울어린이대공원과 건국대학교 서울캠퍼스도 근거리에 있으니 산책의 즐거움도 두루 경험하길 바라요. ☆ 내부에 별도의 주방 시설은 없으며, 화장실 세면대 맞은편에 소형 싱크대가 설치되어 있습니다. ☆ 다중생활시설(고시원)로, 4층에 있는 공용 주방(7번째 사진)을 다른 호실과 함께 사용하는 구조입니다. 공용 주방에는 전기레인지, 세탁기, 건조기, 테이블 등이 비치되어 있습니다. ☆ 보증금대출 및 보증보험 가입은 불가하며, 전입신고 및 확정일자는 가능합니다. 보증금 5,000만원까지 최우선변제 가능합니다. |
| 위치 | 서울시 광진구 화양동 29-26 | 업데이트 | 2026.01.04 | ||
| 주구조 | 철근콘크리트조 | 주용도 | 다중생활시설(고시원) | 사용승인일 | 2022.09.07 |
| 방 수 | 1개(오픈형) | 욕실 수 | 1개 | 서비스공간 | 공용 주방 |
| 방향/기준 | 남향/방 | 난방종류 | 도시가스(개별) | 엘리베이터 | O |
| 주차/주차비 | 불가 | 반려동물 | X | ||
| 등록임대주택 | 미등록 | 보증금대출 | X | 보증보험 | X |
| 옵션 | 신발장, 붙박이장, 천장형에어컨 1대, 소형 싱크대, 소형 냉장고, 포터블 인덕션(1구), 샤워부스, 블라인드, 전자도어락, 비디오폰 | ||||
| 기타시설 | 보안출입문, 공용부 CCTV, 화재경보기, 우편함 | 계약단위 | 최소 1년 | ||
| 관리비 | 일반관리비 10만원 (정액)
사용료 (실비)
퇴실청소비 15만원 (정액)
| ||||
| 비고 | 건물 내 흡연 불가 | ||||
| 최대 중개보수 | 중개보수 = 거래금액 x 상한요율 (VAT 별도) >> 중개보수 계산기
| ||||
| 설계 | 시공 | 아크랩건설 | 매물 담당 | 전명희 | |
| 글 | 전명희 | 사진 | 전명희, 김민석 | 도면 | - |
광진구 화양동 '숲속의 집' 302호 서울시┃광진구┃화양동 월세 5,000/70만원┃관리비 9만원 전용면적 16.12㎡┃실사용면적 16.12㎡ 구조 1R/단층┃방수 1개/오픈형┃욕실수 1개 해당층 3F┃총층 B1~7F┃입주 2026.02.17/협의불가┃융자 있음 교통 어린이대공원역 (7호선) 도보 4분 / 건대입구역 (2호선) 도보 8분 | ||
숲속의 집에 오신 걸 환영합니다 '숲속의 집' 3층 2호 라인에 들어서자마자 FKJ*의 숲속 스튜디오가 연상됐습니다. 그의 멋진 음악들이 탄생되는 바로 그 환상적인 음악 작업실이 눈앞에 재현된 느낌이었어요. 막상 도심 속에서 이런 공간을 만나니 비현실적으로 다가왔을 정도예요. 일단 현관문을 열면 코너창 너머로 보이는 녹색이 단번에 시선을 사로잡습니다. 그리고 마음을 흔들어 댑니다. 새의 울음소리가 마치 '그래, 이 집이야~'라고 속삭이는 것처럼 들리기도. 햇빛에 반짝이는 나뭇잎도 그 나뭇잎이 만들어내는 그림자도 온통 사람의 마음을 술렁이게 합니다. *FKJ: French Kiwi Juice / 일렉트로닉 팝 아티스트 사다리꼴 형태를 가진 2호 라인에는 널찍한 코너창이 설치되어 있습니다. 녹색 전망은 말할 것도 없고, 동쪽과 남쪽을 향하고 있는 코너창으로 하루 종일 빛이 풍부하게 들어옵니다. 보통의 집보다 천장고가 30cm 높아서 트로피컬 한 분위기가 더욱 극대화되는 것 같습니다. 집안에서 식물을 키우지 않아도 트로피컬 인테리어를 완성할 수 있는 집이랄까요. 가끔 창문을 열어 새들이 지저귀는 노랫소리도 듣고, 바람 한 줌도 느껴 보았으면 합니다. 정말이지 코너창 앞에 안락한 의자 하나 가져다 두고, 가만히 앉아만 있어도 숲에서 산림욕 하는 기분이 들 것 같은 집입니다. 원룸 화장실이라기엔 면적도 작지 않고, 와이드 한 세면대와 샤워부스가 설치되어 있으니 쾌적하게 사용하세요. 그리고 화장실 안에서도 창밖 풍경을 감상할 수 있으니 방문 시 잊지 말고 체크해 보길 바라요. 지하철역과도 꽤 가까운 거리인데 숲을 품은 집을 만날 수 있다는 건 굉장한 행운인 것 같습니다. 이곳에서 지낸다면 휴양지로 휴가 온 기분이 들 것 같아요. 휴식과 활력을 얻을 수 있는 집이란 생각이 듭니다. 건축물 용도가 다중생활시설(고시원)이라 보증금 대출이나 보증보험 가입이 어렵고, 주방을 공동으로 사용해야 함에도 불구하고 말이죠. '숲속의 집'에서 사계절이 변화하는 모습을 오롯이 경험하고 싶다면 어서 별집의 문을 두드려 주세요! 화양동은 7호선 어린이대공원역과 2호선 건대입구역 사이에 위치한 동네입니다. 인근에 세종대와 건국대가 있어서인지 거리에서 특유의 활기찬 바이브가 느껴져요. 롯데백화점, 스타시티몰, 이마트, CGV, 로데오거리와 같은 생활 편의시설이 즐비하고, 트렌디하고 가성비 좋은 맛집이 많은 동네이기도 합니다. 서울어린이대공원과 건국대학교 서울캠퍼스도 근거리에 있으니 산책의 즐거움도 두루 경험하길 바라요. ☆ 내부에 별도의 주방 시설은 없으며, 화장실 세면대 맞은편에 소형 싱크대가 설치되어 있습니다. ☆ 다중생활시설(고시원)로, 4층에 있는 공용 주방(7번째 사진)을 다른 호실과 함께 사용하는 구조입니다. 공용 주방에는 전기레인지, 세탁기, 건조기, 테이블 등이 비치되어 있습니다. ☆ 보증금대출 및 보증보험 가입은 불가하며, 전입신고 및 확정일자는 가능합니다. 보증금 5,000만원까지 최우선변제 가능합니다. |
| 위치 | 서울시 광진구 화양동 29-26 | 업데이트 | 2026.01.04 | ||
| 주구조 | 철근콘크리트조 | 주용도 | 다중생활시설(고시원) | 사용승인일 | 2022.09.07 |
| 방 수 | 1개(오픈형) | 욕실 수 | 1개 | 서비스공간 | 공용 주방 |
| 방향/기준 | 남향/방 | 난방종류 | 도시가스(개별) | 엘리베이터 | O |
| 주차/주차비 | 불가 | 반려동물 | X | ||
| 등록임대주택 | 미등록 | 보증금대출 | X | 보증보험 | X |
| 옵션 | 신발장, 붙박이장, 천장형에어컨 1대, 소형 싱크대, 소형 냉장고, 포터블 인덕션(1구), 샤워부스, 블라인드, 전자도어락, 비디오폰 | ||||
| 기타시설 | 보안출입문, 공용부 CCTV, 화재경보기, 우편함 | 계약단위 | 최소 1년 | ||
| 관리비 | 일반관리비 10만원 (정액)
사용료 (실비)
퇴실청소비 15만원 (정액)
| ||||
| 비고 | 건물 내 흡연 불가 | ||||
| 최대 중개보수 | 중개보수 = 거래금액 x 상한요율 (VAT 별도) >> 중개보수 계산기
| ||||
| 설계 | 시공 | 아크랩건설 | 매물 담당 | 전명희 | |
| 글 | 전명희 | 사진 | 전명희, 김민석 | 도면 | - |

