경기도 파주시 서패동 '회재' 근생 경기도┃파주시┃서패동 매매 13억원 (1,177만원/3.3㎡) 전세 7억원 또는 월세 2억5,000/300만원┃관리비 없음 대지면적 365㎡┃연면적(실사용면적) 144.89㎡ 구조 4LDK/복층┃방수 4개/분리형┃욕실수 3개 해당층 1~2F+RF┃총층 1~2F+RF┃입주 협의┃융자 있음 교통 버스정류장 (돌곶이꽃마을) 도보 10분, 운정중앙역 GTX-A 차량 12분 | ||
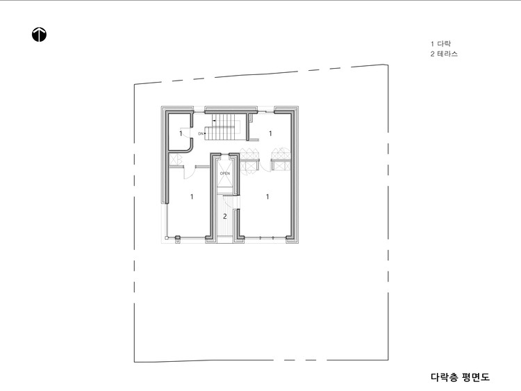
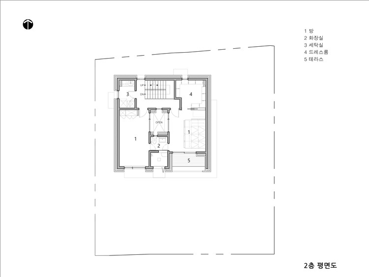
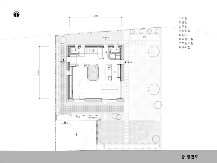
회재(回齋), 빛과 바람 그리고 사람이 돌아오는 곳 다독가는 아니지만 파주 출판단지를 지날 때면 기분이 절로 좋아집니다. 이번에 소개할 매물은 그 출판단지와 아주 가까운 곳에 자리한 건물이에요. 파주는 언젠가 한 번쯤 살아보고 싶다고 마음에 담아두던 지역이기도 합니다. 도시의 소음이 한 박자 늦춰진 듯한 여유, 그 느긋함이 생각보다 중독성이 크다고들 하죠. 운정 신도시가 가까워 인프라도 비교적 잘 갖춰져 있습니다. 오랜만에 파주를 찾는 설렘과 함께, 문자에서부터 다정함이 전해지던 소유자분의 공간이 어떤 모습과 분위기를 담고 있을지 상상하며 길을 나섰어요. 이 건물의 중심에는 중정이 있습니다. 단순한 시각적 장치가 아니라, 건물 전체의 호흡을 결정하는 공간이에요. ‘ㅁ’자 형태의 건물 안에 또 하나의 ‘ㅁ’자 중정이 놓이며, 모든 공간이 자연스럽게 중정을 향해 열려 있습니다. 덕분에 집 안 어디에 있든 빛과 바람이 막힘없이 드나들어요. 모든 공간에 두 개 이상의 창이 계획된 이유이기도 합니다. 주방에 있어도 중정을 통해 집 안 곳곳이 한눈에 들어와, 아이가 있는 집이라면 특히 안심이 되는 구조입니다. 층고 역시 공간의 인상을 크게 좌우하는데요. 1층은 약 2.9m, 2층도 약 2.5m로 일반 주택보다 여유 있는 편이라, 실제 체감되는 공간감이 훨씬 시원합니다. 벽 대신 가구와 수납으로 공간을 구획한 점도 인상적입니다. 계단 하부까지 활용한 수납장, 각 방마다 마련된 붙박이장과 드레스룸 덕분에 생활은 단정하게 정리됩니다. 마당 또한 넉넉해 수영장이나 캠핑, 바비큐는 물론 텃밭까지 가꿀 수 있고, 담장으로 둘러싸여 외부 시선을 신경쓰지 않아도 돼요. '회재'는 근린생활시설이라는 용도 안에서, 주거와 근린 기능이 유연하게 공존할 수 있음을 보여주는 건물입니다. 1층은 거실·주방·다이닝·다용도실이 중정을 따라 순환하는 구조로, 아이들이 뛰어놀기에도, 가족의 시선이 닿기에도 안정적인 동선을 갖췄습니다. 심지어 주방과 다이닝실에서도 마당이 훤히 내다보여요. 주방 옆에 자리한 다용도실에는 수납장과 가스레인지가 설치돼 있고, 외부로 바로 연결되는 문이 있어 쓰레기 보관과 배출도 수월합니다. 학교에서 돌아온 아이들이 곧장 손을 씻을 수 있도록 현관 옆에 세면대를 둔 점에서도 이 집이 생활의 흐름을 얼마나 세심하게 고려했는지 느껴집니다. 1층만큼이나 2층도 재미난 구조를 가졌습니다. 중정을 사이에 두고 침실 두 개가 마주보도록 배치돼 있어, 투명한 중정 너머로 서로의 공간이 은은하게 이어집니다. 필요에 따라 블라인드로 시선을 조절할 수 있어요. 방 두 개와 욕실이 하나의 관계로 엮인 구성 역시 눈길이 갑니다. 각 방에서 욕실로의 접근 동선이 짧고 단순해지는 이점이 있는 구성이에요. 욕실 맞은편에 샤워실이 있는데, 물을 채워 욕조처럼도 사용할 수도 있어요. 바깥 풍경을 바라보며 느긋한 목욕 시간을 즐기기 좋아 보입니다. 두 개의 방과 주방, 화장실이 갖춰진 다락층은 독립적인 층으로 활용할 수 있는 구조입니다. 각 실마다 경사진 천장을 따라 창이 나 있어, 다락층에서만 느낄 수 있는 특별한 공간감을 전해줍니다. 큼지막한 세모 모양의 창 너머로는 탁 트인 풍경이 펼쳐지고, 고개를 조금만 들면 천창을 통해 푸르른 하늘이 시야에 들어와요. 의자에 앉으면 가로로 길게 난 띠창과 눈높이가 맞춰지는데, 이 창 너머로 담기는 석양이 유독 인상적이라고. 다락층은 하루의 끝을 천천히 머물고 싶은 그런 공간입니다. 이 집을 한 바퀴 돌아보고 나니, 공간 하나하나가 따로 존재하기보다는 중정을 중심으로 서로를 배려하며 이어져 있다는 인상이 오래 남습니다. 근린생활시설이라는 용도 덕분에 디자인 스튜디오나 IT 업종의 사옥, 방송 작가의 작업실처럼 일의 성격이 공간에 자연스럽게 스며드는 용도로도 잘 어울립니다. 주거와 업무를 한 건물 안에서 수직적으로 분리해 사용하고 싶은 분들께도 충분히 매력적인 선택지가 될 수 있고요. 집과 일터 사이의 경계를 조금 느슨하게 두고, 하루의 속도를 스스로 조율하며 살고 싶은 분께 특히 잘 맞는 공간입니다.
☆ [층별 면적] 1F : 제2종근린생활시설 72.32㎡ / 2F : 제2종근린생활시설 2.57㎡ / RF : oo㎡ ▶ 면적 계산기 ☆ 본 매물은 단독주택이 아닌 근린생활시설 건물입니다. 주거와 업무를 함께 담을 수 있는 공간으로, 전입신고 희망 시 일부 주택으로 용도변경하여 전입신고도 가능합니다. ☆ 사진은 1F ▷ 2F ▷ RF ▷ 외관 순으로 정리했습니다. |
| 위치 | 경기도 파주시 서패동 262-9 | 업데이트 | 2026.03.24 | ||
| 주구조 | 철근콘크리트조 | 주용도 | 제2종근린생활시설 | 사용승인일 | 2022.07.12 |
| 방 | 4개(분리형) | 화장실 | 3개(욕조 O) | 엘리베이터 | 없음 |
| 방향/기준 | 남향/거실 | 난방종류 | 도시가스(개별) | 서비스공간 | 테라스(2F 및 RF) |
| 주차 | 법정1대 (총 주차대수 2대) | ||||
| 지역/지구 | 생산관리지역 | 반려동물 | O | ||
| 옵션 | 빌트인 가구 및 가전(천장형에어컨 6대, 전기레인지, 가스레인지, 식기세척기, 전기오븐, 소형냉장고, 드럼세탁기), 블라인드, 커튼, 비디오폰, 전자도어락 | ||||
| 기타시설 | - | ||||
| 관리비 | 일반관리비 없음
사용료 (실비)
| ||||
| 비고 | 서패동 262-14 도로 지분 포함하여 매매(소유권 지분 38/55) 다용도실에 수납장과 가스레인지가 설치되어 있음 다락층에 냉장고와 드럼세탁기를 갖춘 작은 주방이 있음 | ||||
| 최대 중개보수 | 중개보수 = 거래금액 x 상한요율 (VAT 별도) ▶ 중개보수 계산기
| ||||
| 설계 | 시공 | 정흥종합건설 | 매물 담당 | 전명희 | |
| 글 | 전명희 | 사진 | 전명희, 권보준(collab.works), 김재윤(Z studio), 소유자 | 도면 | 소유자 |
경기도 파주시 서패동 '회재' 근생 경기도┃파주시┃서패동 매매 13억원 (1,177만원/3.3㎡) 전세 7억원 또는 월세 2억5,000/300만원┃관리비 없음 대지면적 365㎡┃연면적(실사용면적) 144.89㎡ 구조 4LDK/복층┃방수 4개/분리형┃욕실수 3개 해당층 1~2F+RF┃총층 1~2F+RF┃입주 협의┃융자 있음 교통 버스정류장 (돌곶이꽃마을) 도보 10분, 운정중앙역 GTX-A 차량 12분 | ||
회재(回齋), 빛과 바람 그리고 사람이 돌아오는 곳 다독가는 아니지만 파주 출판단지를 지날 때면 기분이 절로 좋아집니다. 이번에 소개할 매물은 그 출판단지와 아주 가까운 곳에 자리한 건물이에요. 파주는 언젠가 한 번쯤 살아보고 싶다고 마음에 담아두던 지역이기도 합니다. 도시의 소음이 한 박자 늦춰진 듯한 여유, 그 느긋함이 생각보다 중독성이 크다고들 하죠. 운정 신도시가 가까워 인프라도 비교적 잘 갖춰져 있습니다. 오랜만에 파주를 찾는 설렘과 함께, 문자에서부터 다정함이 전해지던 소유자분의 공간이 어떤 모습과 분위기를 담고 있을지 상상하며 길을 나섰어요. 이 건물의 중심에는 중정이 있습니다. 단순한 시각적 장치가 아니라, 건물 전체의 호흡을 결정하는 공간이에요. ‘ㅁ’자 형태의 건물 안에 또 하나의 ‘ㅁ’자 중정이 놓이며, 모든 공간이 자연스럽게 중정을 향해 열려 있습니다. 덕분에 집 안 어디에 있든 빛과 바람이 막힘없이 드나들어요. 모든 공간에 두 개 이상의 창이 계획된 이유이기도 합니다. 주방에 있어도 중정을 통해 집 안 곳곳이 한눈에 들어와, 아이가 있는 집이라면 특히 안심이 되는 구조입니다. 층고 역시 공간의 인상을 크게 좌우하는데요. 1층은 약 2.9m, 2층도 약 2.5m로 일반 주택보다 여유 있는 편이라, 실제 체감되는 공간감이 훨씬 시원합니다. 벽 대신 가구와 수납으로 공간을 구획한 점도 인상적입니다. 계단 하부까지 활용한 수납장, 각 방마다 마련된 붙박이장과 드레스룸 덕분에 생활은 단정하게 정리됩니다. 마당 또한 넉넉해 수영장이나 캠핑, 바비큐는 물론 텃밭까지 가꿀 수 있고, 담장으로 둘러싸여 외부 시선을 신경쓰지 않아도 돼요. '회재'는 근린생활시설이라는 용도 안에서, 주거와 근린 기능이 유연하게 공존할 수 있음을 보여주는 건물입니다. 1층은 거실·주방·다이닝·다용도실이 중정을 따라 순환하는 구조로, 아이들이 뛰어놀기에도, 가족의 시선이 닿기에도 안정적인 동선을 갖췄습니다. 심지어 주방과 다이닝실에서도 마당이 훤히 내다보여요. 주방 옆에 자리한 다용도실에는 수납장과 가스레인지가 설치돼 있고, 외부로 바로 연결되는 문이 있어 쓰레기 보관과 배출도 수월합니다. 학교에서 돌아온 아이들이 곧장 손을 씻을 수 있도록 현관 옆에 세면대를 둔 점에서도 이 집이 생활의 흐름을 얼마나 세심하게 고려했는지 느껴집니다. 1층만큼이나 2층도 재미난 구조를 가졌습니다. 중정을 사이에 두고 침실 두 개가 마주보도록 배치돼 있어, 투명한 중정 너머로 서로의 공간이 은은하게 이어집니다. 필요에 따라 블라인드로 시선을 조절할 수 있어요. 방 두 개와 욕실이 하나의 관계로 엮인 구성 역시 눈길이 갑니다. 각 방에서 욕실로의 접근 동선이 짧고 단순해지는 이점이 있는 구성이에요. 욕실 맞은편에 샤워실이 있는데, 물을 채워 욕조처럼도 사용할 수도 있어요. 바깥 풍경을 바라보며 느긋한 목욕 시간을 즐기기 좋아 보입니다. 두 개의 방과 주방, 화장실이 갖춰진 다락층은 독립적인 층으로 활용할 수 있는 구조입니다. 각 실마다 경사진 천장을 따라 창이 나 있어, 다락층에서만 느낄 수 있는 특별한 공간감을 전해줍니다. 큼지막한 세모 모양의 창 너머로는 탁 트인 풍경이 펼쳐지고, 고개를 조금만 들면 천창을 통해 푸르른 하늘이 시야에 들어와요. 의자에 앉으면 가로로 길게 난 띠창과 눈높이가 맞춰지는데, 이 창 너머로 담기는 석양이 유독 인상적이라고. 다락층은 하루의 끝을 천천히 머물고 싶은 그런 공간입니다. 이 집을 한 바퀴 돌아보고 나니, 공간 하나하나가 따로 존재하기보다는 중정을 중심으로 서로를 배려하며 이어져 있다는 인상이 오래 남습니다. 근린생활시설이라는 용도 덕분에 디자인 스튜디오나 IT 업종의 사옥, 방송 작가의 작업실처럼 일의 성격이 공간에 자연스럽게 스며드는 용도로도 잘 어울립니다. 주거와 업무를 한 건물 안에서 수직적으로 분리해 사용하고 싶은 분들께도 충분히 매력적인 선택지가 될 수 있고요. 집과 일터 사이의 경계를 조금 느슨하게 두고, 하루의 속도를 스스로 조율하며 살고 싶은 분께 특히 잘 맞는 공간입니다.
☆ [층별 면적] 1F : 제2종근린생활시설 72.32㎡ / 2F : 제2종근린생활시설 2.57㎡ / RF : oo㎡ ▶ 면적 계산기 ☆ 본 매물은 단독주택이 아닌 근린생활시설 건물입니다. 주거와 업무를 함께 담을 수 있는 공간으로, 전입신고 희망 시 일부 주택으로 용도변경하여 전입신고도 가능합니다. ☆ 사진은 1F ▷ 2F ▷ RF ▷ 외관 순으로 정리했습니다. |
| 위치 | 경기도 파주시 서패동 262-9 | 업데이트 | 2026.03.24 | ||
| 주구조 | 철근콘크리트조 | 주용도 | 제2종근린생활시설 | 사용승인일 | 2022.07.12 |
| 방 | 4개(분리형) | 화장실 | 3개(욕조 O) | 엘리베이터 | 없음 |
| 방향/기준 | 남향/거실 | 난방종류 | 도시가스(개별) | 서비스공간 | 테라스(2F 및 RF) |
| 주차 | 법정1대 (총 주차대수 2대) | ||||
| 지역/지구 | 생산관리지역 | 반려동물 | O | ||
| 옵션 | 빌트인 가구 및 가전(천장형에어컨 6대, 전기레인지, 가스레인지, 식기세척기, 전기오븐, 소형냉장고, 드럼세탁기), 블라인드, 커튼, 비디오폰, 전자도어락 | ||||
| 기타시설 | - | ||||
| 관리비 | 일반관리비 없음
사용료 (실비)
| ||||
| 비고 | 서패동 262-14 도로 지분 포함하여 매매(소유권 지분 38/55) 다용도실에 수납장과 가스레인지가 설치되어 있음 다락층에 냉장고와 드럼세탁기를 갖춘 작은 주방이 있음 | ||||
| 최대 중개보수 | 중개보수 = 거래금액 x 상한요율 (VAT 별도) ▶ 중개보수 계산기
| ||||
| 설계 | 시공 | 정흥종합건설 | 매물 담당 | 전명희 | |
| 글 | 전명희 | 사진 | 전명희, 권보준(collab.works), 김재윤(Z studio), 소유자 | 도면 | 소유자 |

